Planning application

23/01107/VARY

511 Lanark Road Juniper Green EH14 5DQ

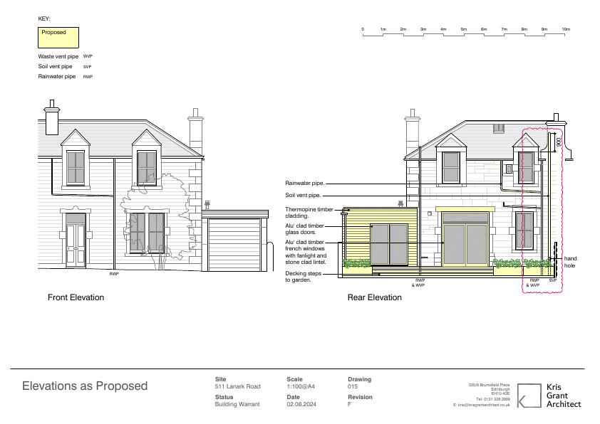
Rear soil stack moved right of bathroom window, switched to PVC like next-door, and entire above-ground drainage repainted UV-resistant for a tidy, consistent rear elevation; no other works. .

Status: Permission has been variedCategory: Mechanical Plant, Flues & VentilationReceived: 7 May 2025

Core Details

Reference
23/01107/VARY
Address
511 Lanark Road Juniper Green EH14 5DQ
Status
Permission has been varied
Category
Mechanical Plant, Flues & Ventilation
Impact Scale
2/10

Timeline

Received
Validated
Last Scraped
Record Created

Additional Application Data

Latitude
55.9046323
Longitude
-3.2817768

Application Summary

AI Summary

Rear soil stack moved right of bathroom window, switched to PVC like next-door, and entire above-ground drainage repainted UV-resistant for a tidy, consistent rear elevation; no other works. .

Original Description

Non Material Variation - Under the approved Building Warrant amendment the Soil stack is to be moved to the right hand side of the bathroom window to assist in tidying up the redundant branches in the current system. The existing system is part PVC and part cast iron. As the new stack is to the rear of the property and adjacent property has PVC. The NMV request is to allow the use of PVC for the new Soil stack to be installed. There will be no other change. However I also propose repainting the entire above ground drainage in a UV resistant paint to ensure a uniform appearance. Location Drwg 23_01107_FUL-_01 Elevations Existing Drwg. 23_01107-_04 Proposed Elevation under approved Building Warrant amendment Drwg.015(F).

Supporting Documents (4)