Planning application

25/01353/LBC

146 Duddingston Road West Duddingston Edinburgh

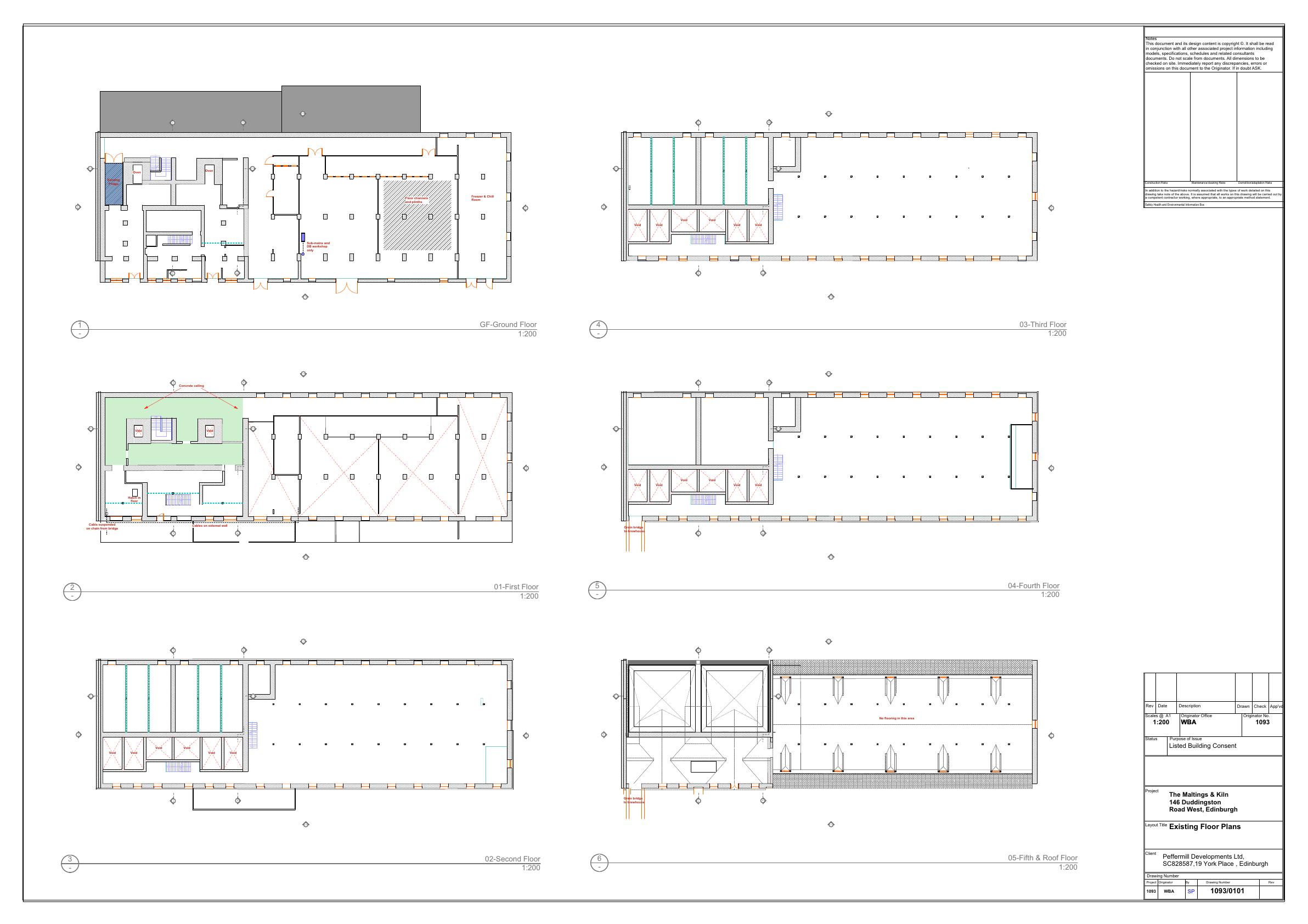
Repair and re-slate pitched roofs, replace mansard sections and rebuild four kiln ventilator towers on the landmark former Drybrough maltings, securing its historic industrial profile. .

Status: Application WithdrawnCategory: Roof Works & DormersReceived: 14 March 2025

Core Details

Reference
25/01353/LBC
Address
146 Duddingston Road West Duddingston Edinburgh
Status
Application Withdrawn
Category
Roof Works & Dormers
Impact Scale
5/10

Timeline

Received
Validated
Last Scraped
Record Created

Additional Application Data

Latitude
55.9441304
Longitude
-3.1391128

Application Summary

AI Summary

Repair and re-slate pitched roofs, replace mansard sections and rebuild four kiln ventilator towers on the landmark former Drybrough maltings, securing its historic industrial profile. .

Original Description

Repair, reinstatement and alteration of the kiln block roofs to the maltbarn former Drybrough Craigmillar brewery. The works involve repair and reinstatement of pitched roofs and replacement and alteration of mansard roof and Kiln roofs and ventilator towers above.

Supporting Documents (5)