Planning application

25/01356/LBC

7 West Scotland Street Lane Broughton Edinburgh EH3 6PT

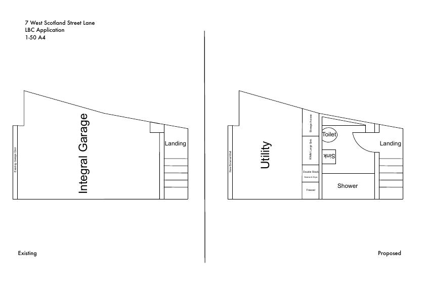
Garage becomes utility, shower & WC; front lane faade gains vertical timber cladding and a new timber entrance door, with no change to height or footprint.

Status: Permission Is Not RequiredCategory: Change of Use & ConversionsReceived: 14 March 2025

Core Details

Reference
25/01356/LBC
Address
7 West Scotland Street Lane Broughton Edinburgh EH3 6PT
Status
Permission Is Not Required
Category
Change of Use & Conversions
Impact Scale
2/10

Timeline

Received
Validated
Last Scraped
Record Created

Additional Application Data

Latitude
55.9594033
Longitude
-3.1961186

Application Summary

AI Summary

Garage becomes utility, shower & WC; front lane faade gains vertical timber cladding and a new timber entrance door, with no change to height or footprint.

Original Description

Conversion of garage to bathroom and utility with associated alterations and replacement door on the front elevation.

Supporting Documents (4)