Planning application

25/01357/FUL

12 East Fettes Avenue Inverleith Edinburgh EH4 1DN

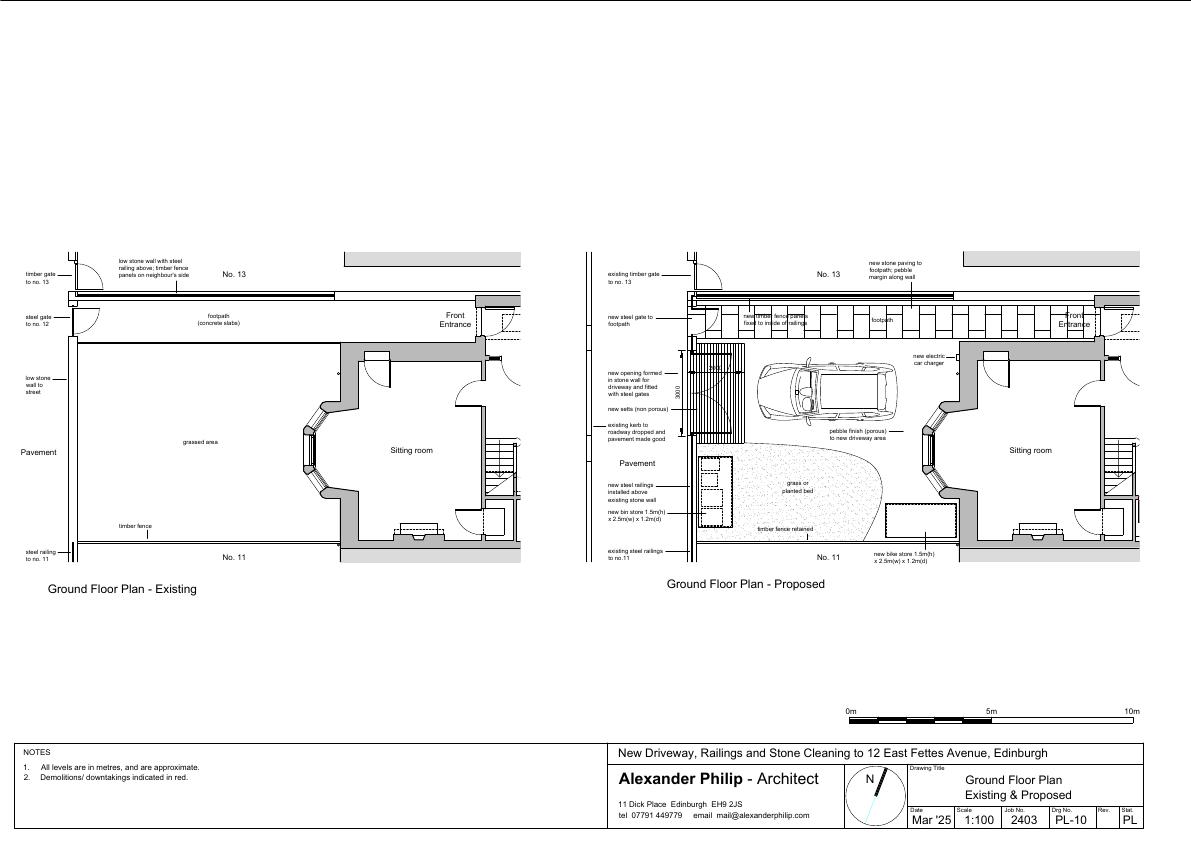
12 East Fettes Ave: front garden becomes single-car driveway with new mild-steel gates/railings, stone wall opening, hard landscaping, discrete bin/bike stores and faade stonework cleaning. .

Status: Application GrantedCategory: Parking, Access & HighwaysReceived: 14 March 2025

Core Details

Reference
25/01357/FUL
Address
12 East Fettes Avenue Inverleith Edinburgh EH4 1DN
Status
Application Granted
Category
Parking, Access & Highways
Impact Scale
2/10

Timeline

Received
14 March 2025
Validated
14 March 2025
Last Scraped
1 October 2025
Record Created
21 March 2025

Application Summary

AI Summary

12 East Fettes Ave: front garden becomes single-car driveway with new mild-steel gates/railings, stone wall opening, hard landscaping, discrete bin/bike stores and faade stonework cleaning. .

Original Description

Creation of new driveway to front, including forming opening in existing wall, installation of new railings and gates, and new surface finishes. New bin store and bike shed. Cleaning of stonework to front elevation of house.

Related Applications (1)

  • 24/04510/VARYPermission has been varied(15 August 2025)

    Swaps solid rear door for glazed timber and tweaks outshoot sash windows to one-over-one style for consistency with the east elevation. .

Supporting Documents (4)