Planning application

25/01362/FUL

12 - 12A Bonnington Road Lane Bonnington Edinburgh EH6 5BJ

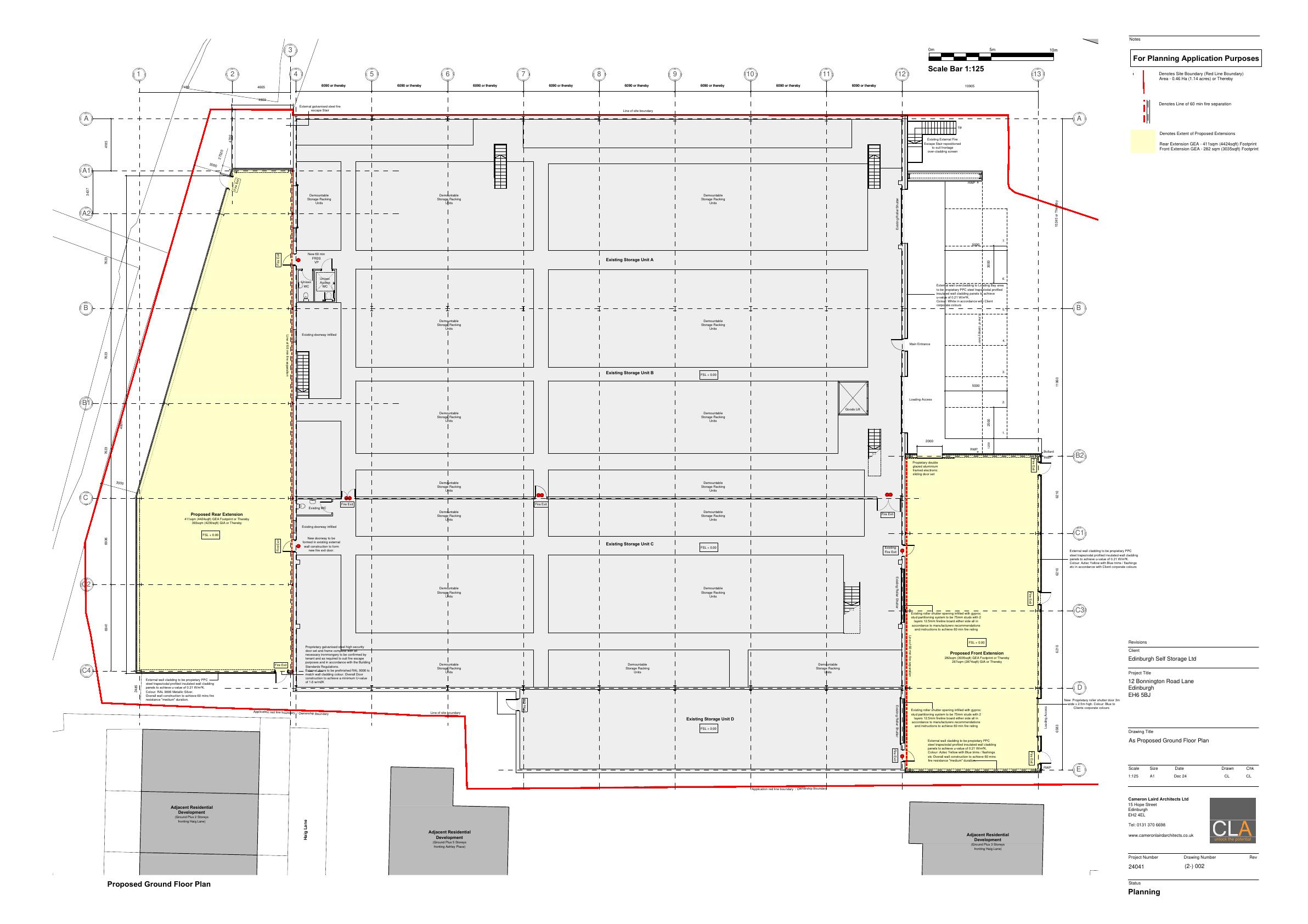
Edinburgh Self Storage plans sizable front and rear add-ons, widening the warehouse footprint toward Ashley Pl and the riverside to increase storage bays and loading areas without new buildings. .

Status: Application GrantedCategory: Extensions & EnlargementsReceived: 14 March 2025

Core Details

Reference
25/01362/FUL
Address
12 - 12A Bonnington Road Lane Bonnington Edinburgh EH6 5BJ
Status
Application Granted
Category
Extensions & Enlargements
Impact Scale
6/10

Timeline

Received
14 March 2025
Validated
28 March 2025
Last Scraped
1 October 2025
Record Created
4 April 2025

Application Summary

AI Summary

Edinburgh Self Storage plans sizable front and rear add-ons, widening the warehouse footprint toward Ashley Pl and the riverside to increase storage bays and loading areas without new buildings. .

Original Description

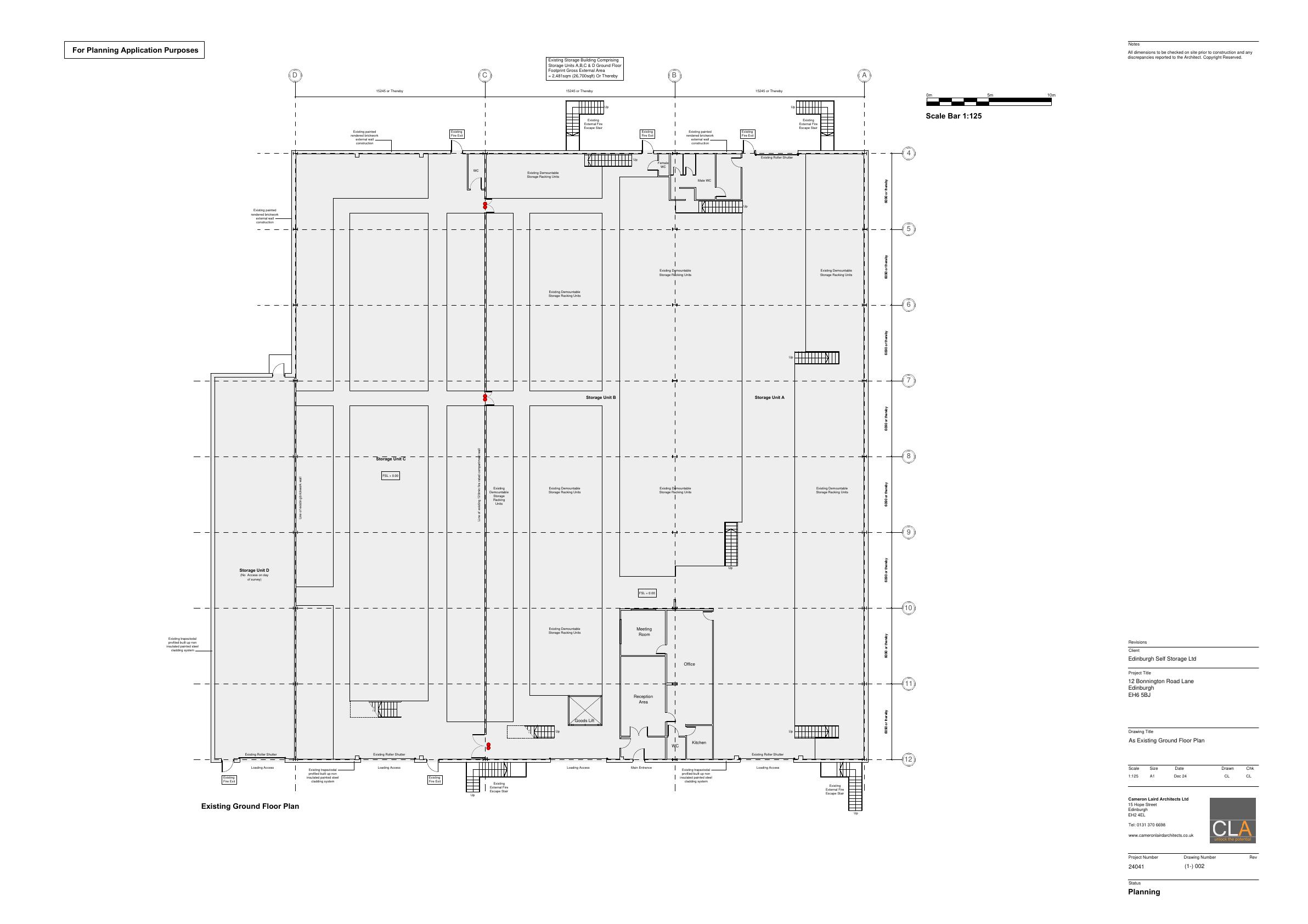
Proposed front and rear extensions to existing self storage unit (as amended)

Related Applications (1)

  • 25/01346/FULPermitted Development(14 March 2025)

    Single-storey metal storage shed at Edinburgh Self Storage, Bonnington Road Lane, to be upgraded into office space; internal fit-out, added glazing, refreshed cladding, no footprint change. .

Supporting Documents (5)