Planning application

25/01364/LBC

11 - 15 Thistle Street New Town Edinburgh

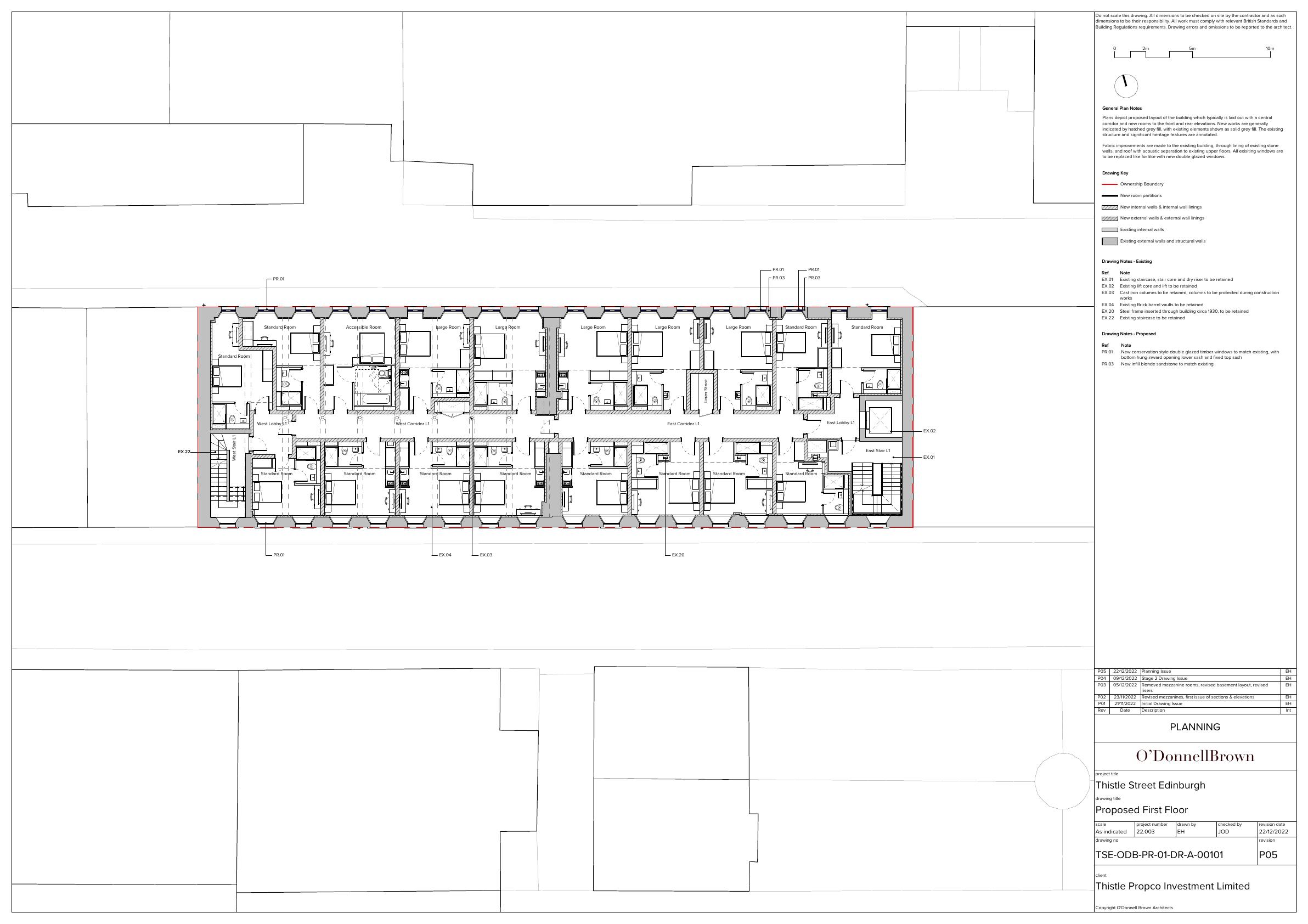
Tweaks to Thistle Street conversion: resize lower-ground windows, shift rooflights and re-arrange internal roomsno change to faade, height or footprint. .

Status: Application GrantedCategory: Windows, Doors & GlazingReceived: 14 March 2025

Core Details

Reference
25/01364/LBC
Address
11 - 15 Thistle Street New Town Edinburgh
Status
Application Granted
Category
Windows, Doors & Glazing
Impact Scale
2/10

Timeline

Received
14 March 2025
Validated
14 March 2025
Last Scraped
1 October 2025
Record Created
21 March 2025

Application Summary

AI Summary

Tweaks to Thistle Street conversion: resize lower-ground windows, shift rooflights and re-arrange internal roomsno change to faade, height or footprint. .

Original Description

Minor amendments to previously approved drawings granted permission under 23/01740/LBC for alterations to facilitate change of use. Amendments include alterations to windows at lower ground floor and roof lights, and minor internal reconfigurations.

Related Applications (1)

  • 23/01739/VARYPermission has been varied(13 March 2025)

    Minor tweaks to consented Thistle Street scheme: rooflights repositioned with extra pane, ground-floor glazing pushed flush, plant-room windows filled, room layouts refined, entrance stone cheeks lit. .

Supporting Documents (5)