Planning application

25/01368/LBC

Unit 8 146 Duddingston Road West Duddingston Edinburgh EH16 4AP

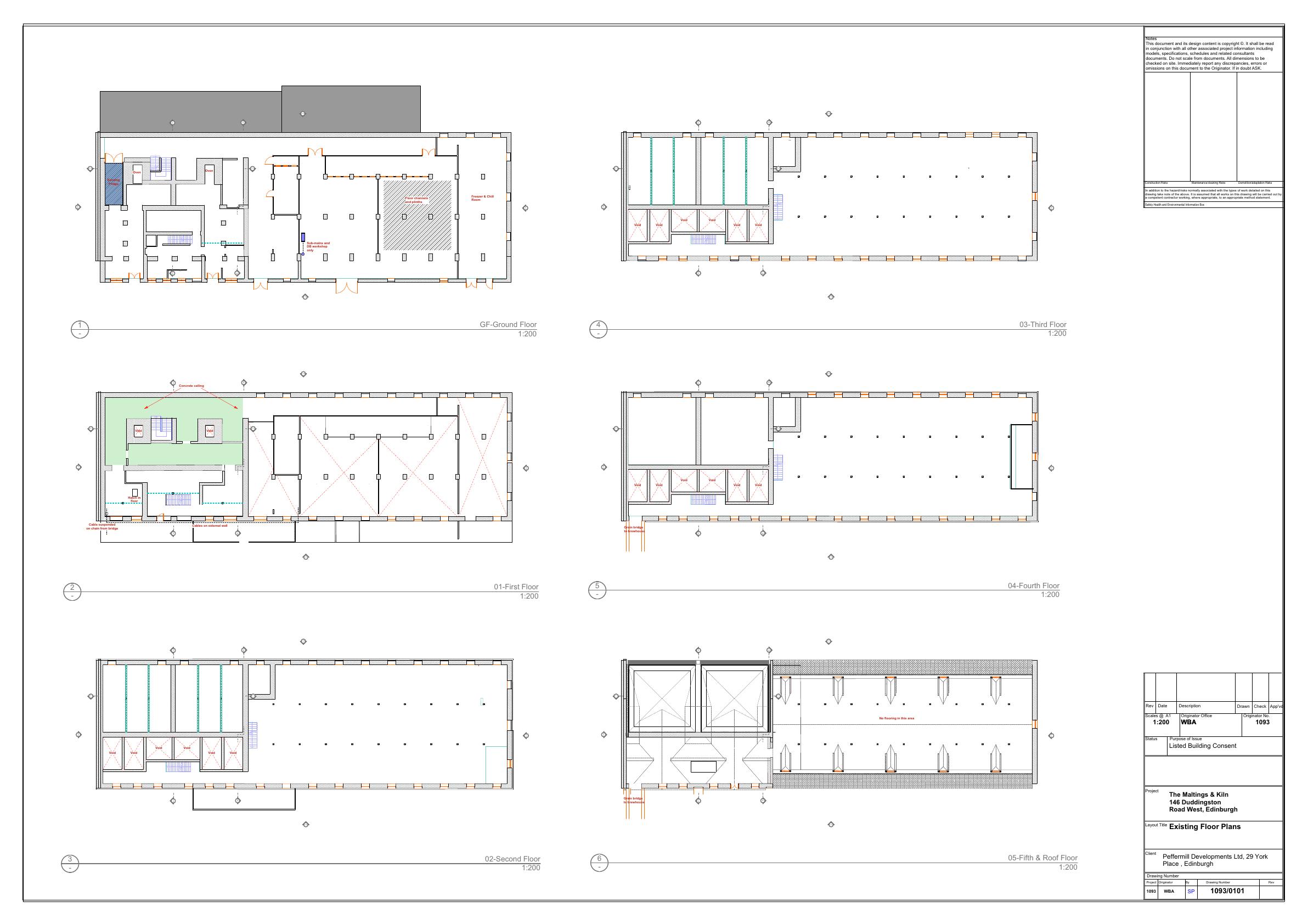
Full slate/lead overhaul to historic maltings blockpitched and mansard roofs repaired, kiln cones and ventilators rebuilt, safeguarding the five-storey listed structures weatherproofing. .

Status: Application WithdrawnCategory: Roof Works & DormersReceived: 14 March 2025

Core Details

Reference
25/01368/LBC
Address
Unit 8 146 Duddingston Road West Duddingston Edinburgh EH16 4AP
Status
Application Withdrawn
Category
Roof Works & Dormers
Impact Scale
5/10

Timeline

Received
Validated
Last Scraped
Record Created

Additional Application Data

Latitude
55.9348
Longitude
-3.142836

Application Summary

AI Summary

Full slate/lead overhaul to historic maltings blockpitched and mansard roofs repaired, kiln cones and ventilators rebuilt, safeguarding the five-storey listed structures weatherproofing. .

Original Description

Repair and reinstatement of pitched roofs, reinstatement and alteration of mansard and kiln roofs and ventilators above.

Supporting Documents (5)