Planning application

25/01371/FUL

68 Craigour Drive Moredun Edinburgh EH17 7NT

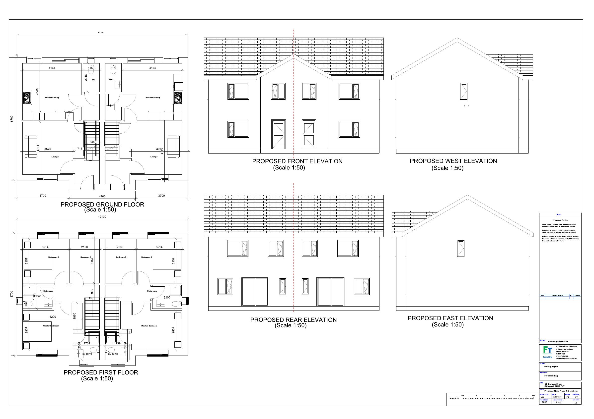
Replace single-storey bungalow with 2-storey pair of 2-bed semis, adding front parking and private rear gardens on 0.03 ha Craigour Drive infill plot. .

Status: Application GrantedCategory: New-Build & Major DevelopmentReceived: 17 March 2025

Core Details

Reference
25/01371/FUL
Address
68 Craigour Drive Moredun Edinburgh EH17 7NT
Status
Application Granted
Category
New-Build & Major Development
Impact Scale
5/10

Timeline

Received
Validated
Last Scraped
Record Created

Additional Application Data

Latitude
55.9162256
Longitude
-3.1339067

Application Summary

AI Summary

Replace single-storey bungalow with 2-storey pair of 2-bed semis, adding front parking and private rear gardens on 0.03 ha Craigour Drive infill plot. .

Original Description

Demolish the existing single storey building and erect new 2-storey 3 bedroom semi-detached units (as amended).

Supporting Documents (5)