Planning application

25/01389/FUL

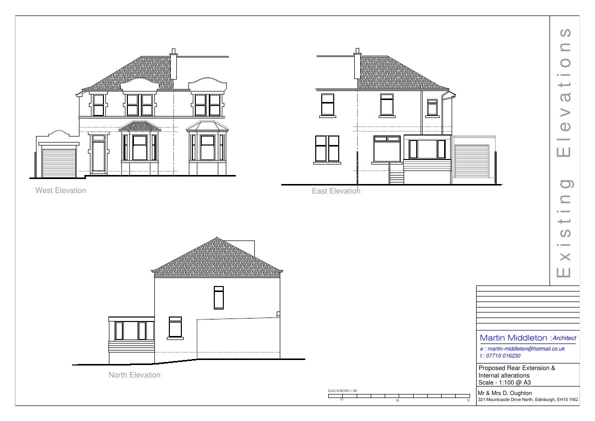
321 Mountcastle Drive North Mountcastle Edinburgh EH15 1NQ

Larger single-storey rear extension with mono-pitched roof and full-height glazing replaces existing add-on; new front dormer opens up attic space, leaving the rest of the house and street scene unchanged.

Status: Application GrantedCategory: Extensions & EnlargementsReceived: 17 March 2025

Core Details

Reference
25/01389/FUL
Address
321 Mountcastle Drive North Mountcastle Edinburgh EH15 1NQ
Status
Application Granted
Category
Extensions & Enlargements
Impact Scale
3/10

Timeline

Received
Validated
Last Scraped
Record Created

Additional Application Data

Latitude
55.9484507
Longitude
-3.1266501

Application Summary

AI Summary

Larger single-storey rear extension with mono-pitched roof and full-height glazing replaces existing add-on; new front dormer opens up attic space, leaving the rest of the house and street scene unchanged.

Original Description

Replace existing single storey extension with another single storey extension and fit a dormer window to the front attic roof.

Supporting Documents (5)