Planning application

25/01402/FUL

44 West Port Old Town Edinburgh EH1 2LD

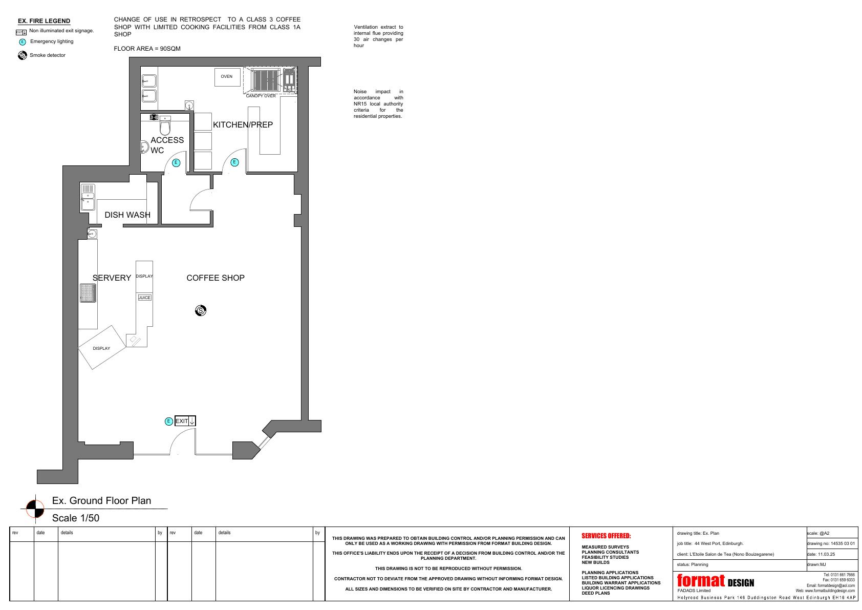
44 West Port unit reclassified to 95 sqm Class 3 coffee shop; adds servery, prep kitchen, internal flue and accessible WC, with no external alterationschanges remain purely internal.

Status: Application GrantedCategory: Change of Use & ConversionsReceived: 17 March 2025

Core Details

Reference
25/01402/FUL
Address
44 West Port Old Town Edinburgh EH1 2LD
Status
Application Granted
Category
Change of Use & Conversions
Impact Scale
2/10

Timeline

Received
Validated
Last Scraped
Record Created

Additional Application Data

Latitude
55.9463922
Longitude
-3.1992266

Application Summary

AI Summary

44 West Port unit reclassified to 95 sqm Class 3 coffee shop; adds servery, prep kitchen, internal flue and accessible WC, with no external alterationschanges remain purely internal.

Original Description

Application for change of use in retrospect to a class 3 coffee shop with limited cooking facilities from class 1a shop.

Supporting Documents (3)