Planning application

25/01427/LBC

GF 43 Heriot Row Edinburgh EH3 6EX

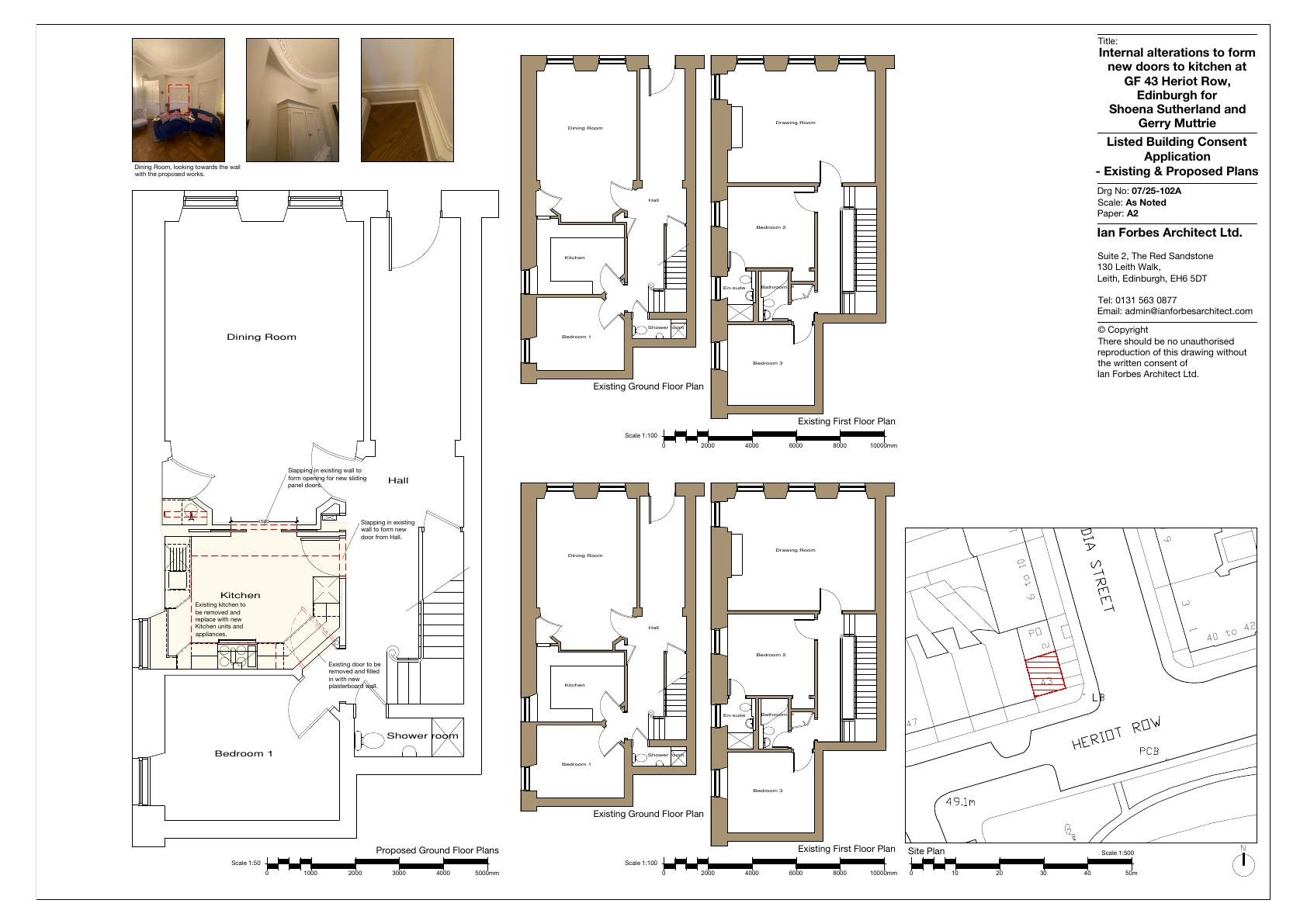
At listed 43 Heriot Row, two new internal door openings cut through non-original partitions to better connect kitchen with dining room and hall; no external works.

Status: Application RefusedCategory: Internal Works & AccessibilityReceived: 17 March 2025

Core Details

Reference
25/01427/LBC
Address
GF 43 Heriot Row Edinburgh EH3 6EX
Status
Application Refused
Category
Internal Works & Accessibility
Impact Scale
2/10

Timeline

Received
Validated
Last Scraped
Record Created

Additional Application Data

Latitude
55.9548704
Longitude
-3.2056206

Application Summary

AI Summary

At listed 43 Heriot Row, two new internal door openings cut through non-original partitions to better connect kitchen with dining room and hall; no external works.

Original Description

Form openings into kitchen.

Supporting Documents (3)