Planning application

25/01437/LBC

2F 16 Buckingham Terrace Dean Edinburgh EH4 3AD

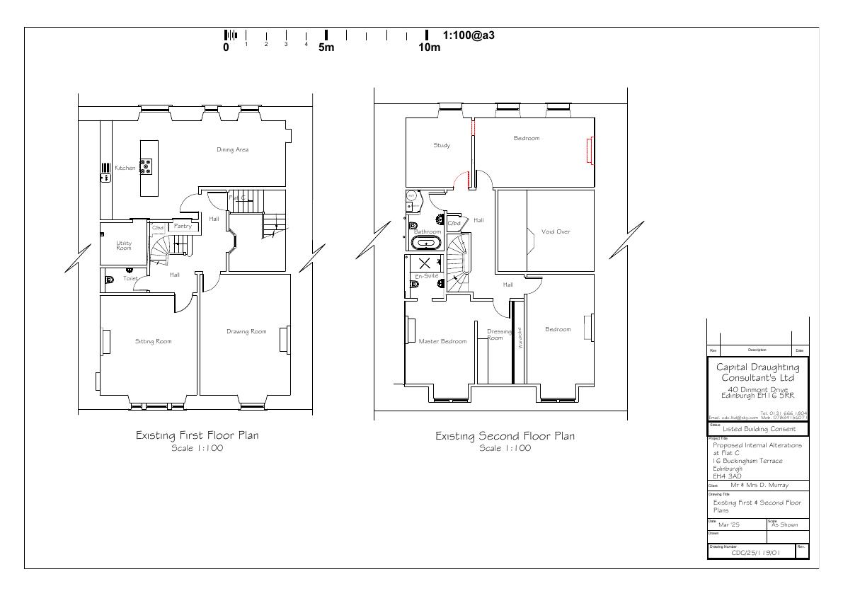
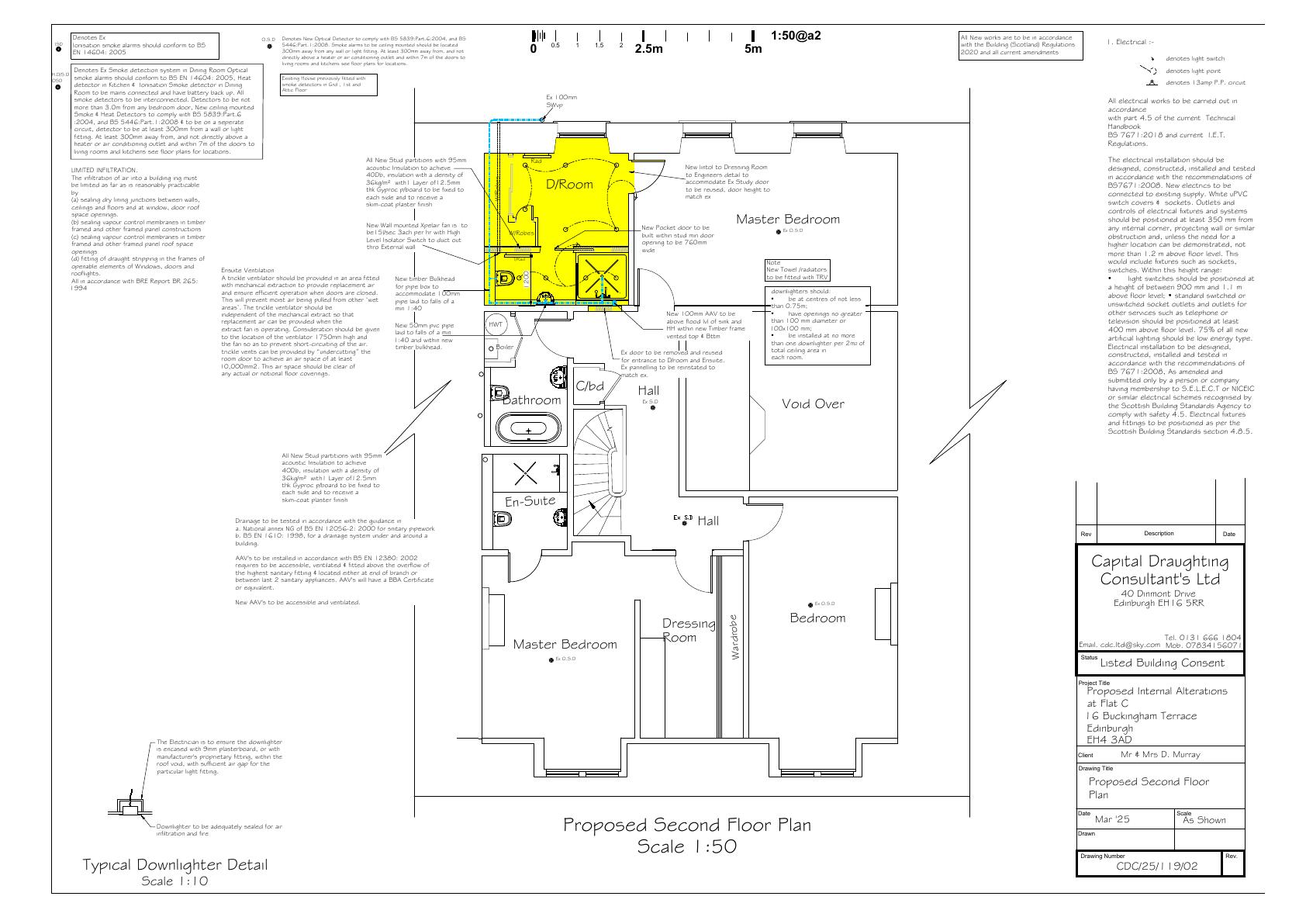
Second-floor flat in Buckingham Terrace to gain new ensuite and dressing room by subdividing rear bedroom; entirely internal work in listed terrace, no external changes or structural upheaval. .

Status: Permission Is Not RequiredCategory: Internal Works & AccessibilityReceived: 18 March 2025

Core Details

Reference
25/01437/LBC
Address
2F 16 Buckingham Terrace Dean Edinburgh EH4 3AD
Status
Permission Is Not Required
Category
Internal Works & Accessibility
Impact Scale
2/10

Timeline

Received
Validated
Last Scraped
Record Created

Additional Application Data

Latitude
55.95487439999999
Longitude
-3.2167768

Application Summary

AI Summary

Second-floor flat in Buckingham Terrace to gain new ensuite and dressing room by subdividing rear bedroom; entirely internal work in listed terrace, no external changes or structural upheaval. .

Original Description

To construct new ensuite and dressing area off rear bedroom on 2nd floor.

Supporting Documents (4)