Planning application

25/01439/LBC

Flat 2 8 Bruntsfield Crescent Edinburgh EH10 4EZ

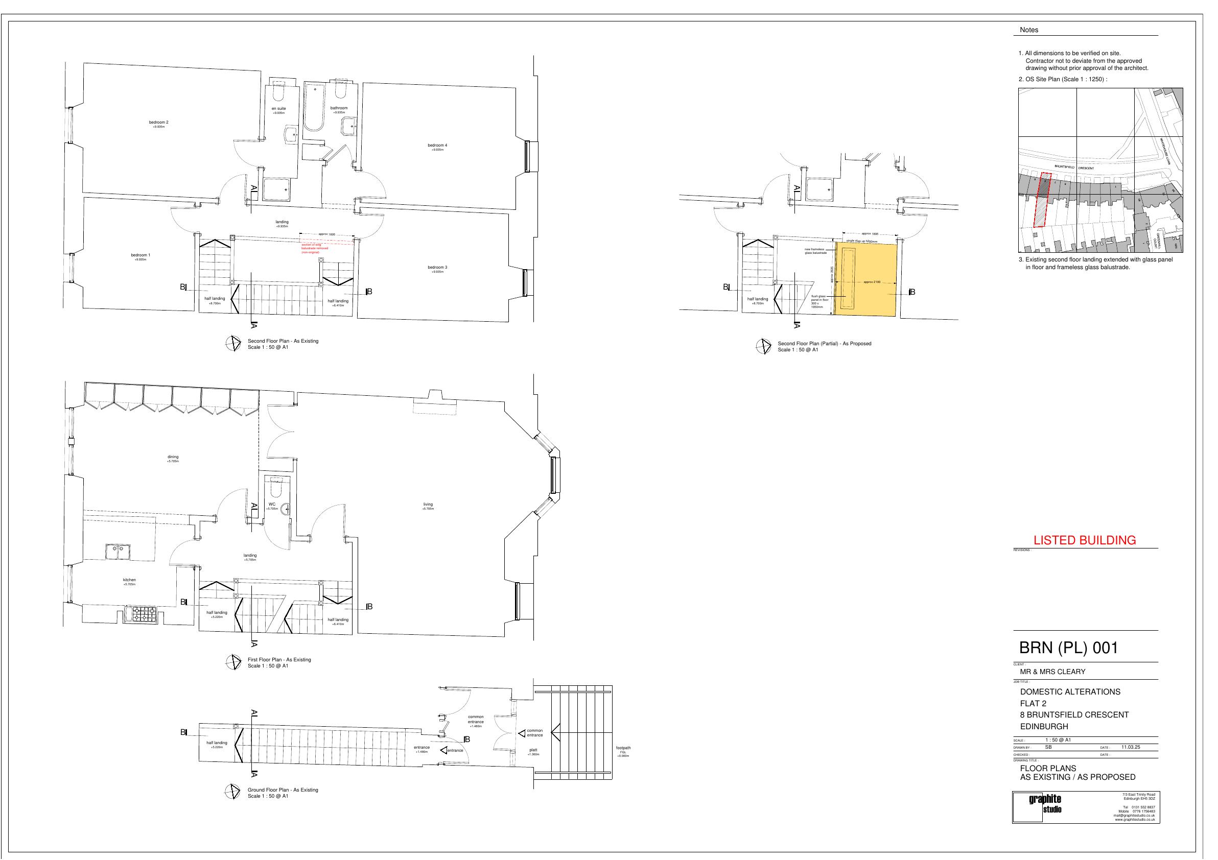
Listed flat gains small landing extension featuring glass floor panel and frameless balustrade, enhancing light and sightlines while leaving external fabric untouched. .

Status: Application RefusedCategory: Internal Works & AccessibilityReceived: 18 March 2025

Core Details

Reference
25/01439/LBC
Address
Flat 2 8 Bruntsfield Crescent Edinburgh EH10 4EZ
Status
Application Refused
Category
Internal Works & Accessibility
Impact Scale
2/10

Timeline

Received
Validated
Last Scraped
Record Created

Additional Application Data

Latitude
55.936145
Longitude
-3.2039332

Application Summary

AI Summary

Listed flat gains small landing extension featuring glass floor panel and frameless balustrade, enhancing light and sightlines while leaving external fabric untouched. .

Original Description

Extend existing second floor landing with glass panel in floor and frameless glass balustrade.

Supporting Documents (4)