Planning application

25/01444/FUL

21 Clerk Street Edinburgh EH8 9JH

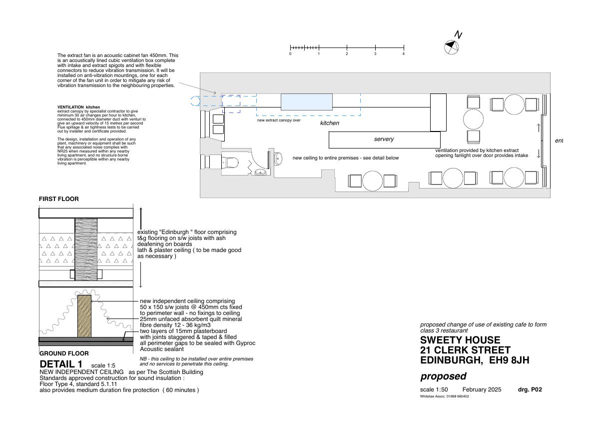
Ground-floor cafe at 21 Clerk St becomes hot-food takeaway with limited seating, adding 450 mm rear metal flue and acoustic ceiling; layout unchanged, no extension.

Status: Application GrantedCategory: Change of Use & ConversionsReceived: 19 March 2025

Core Details

Reference
25/01444/FUL
Address
21 Clerk Street Edinburgh EH8 9JH
Status
Application Granted
Category
Change of Use & Conversions
Impact Scale
2/10

Timeline

Received
Validated
Last Scraped
Record Created

Additional Application Data

Latitude
55.9412135
Longitude
-3.1810669

Application Summary

AI Summary

Ground-floor cafe at 21 Clerk St becomes hot-food takeaway with limited seating, adding 450 mm rear metal flue and acoustic ceiling; layout unchanged, no extension.

Original Description

Proposed change of use to form a hot food takeaway with limited seating rather than full class 3 (as amended).

Supporting Documents (3)