Planning application

25/01446/CLP

Northfield House Hotel 115 Lasswade Road Edinburgh EH16 6UD

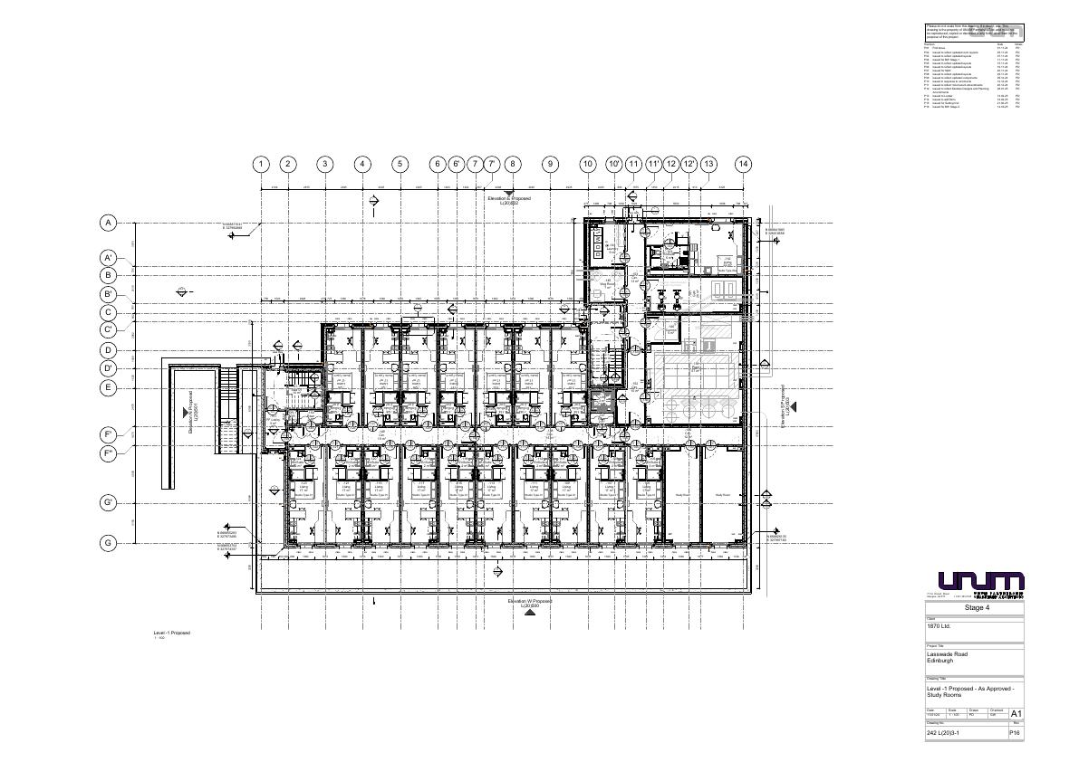
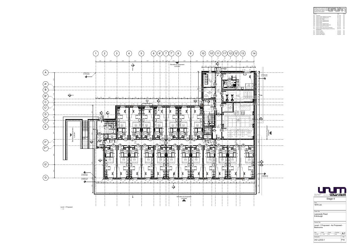
Internal reconfiguration adds two extra bedrooms within the existing dwelling; no change to footprint, height, or external appearance. .

Status: Application RefusedCategory: Internal Works & AccessibilityReceived: 19 March 2025

Core Details

Reference
25/01446/CLP
Address
Northfield House Hotel 115 Lasswade Road Edinburgh EH16 6UD
Status
Application Refused
Category
Internal Works & Accessibility
Impact Scale
2/10

Timeline

Received
19 March 2025
Validated
26 March 2025
Last Scraped
1 October 2025
Record Created
2 April 2025

Application Summary

AI Summary

Internal reconfiguration adds two extra bedrooms within the existing dwelling; no change to footprint, height, or external appearance. .

Original Description

Internal works to create two additional bedrooms.

Related Applications (5)

  • 20/02562/VAR4Permission has been varied(5 February 2026)

    Minor tweaks to approved residential scheme: repositioned cycle stores, refined surfacing and courtyard layout, adjusted stair/bin link, retains more landscaping.

  • 20/02562/VAR3Permission has been varied(9 September 2025)

    Swap metallic cladding on Level 03 for dark-grey smooth render to ease long-term upkeep. .

  • 25/04190/FULApplication Granted(14 August 2025)

    Student block on Lasswade Rd could be repurposed as temporary Class 8(a) housing, largely retaining its current layout. .

  • 25/03360/FULApplication Withdrawn(27 June 2025)

    Purpose-built student block on Lasswade Rd would switch to Class 8a temporary residential use; no structural or external changes proposed. .

  • 20/02562/VAR2Permission has been varied(17 February 2025)

    Enlarges lower courtyard, shifts access route, adds plant equipment and revises external materialsno new buildings, just modest adjustments to the existing design.

Supporting Documents (4)