Planning application

25/01450/LBC

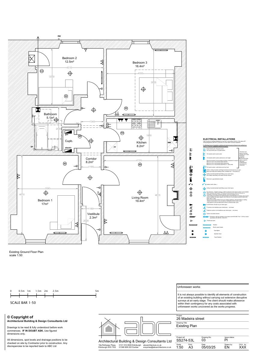
26 Madeira Street Newhaven Edinburgh EH6 4AL

Internal revamp at 26 Madeira St: remove kitchen-living wall for 28 m open-plan space, add 2.7 m en-suite to Bedroom 1; no external works. .

Status: Application GrantedCategory: Internal Works & AccessibilityReceived: 19 March 2025

Core Details

Reference
25/01450/LBC
Address
26 Madeira Street Newhaven Edinburgh EH6 4AL
Status
Application Granted
Category
Internal Works & Accessibility
Impact Scale
2/10

Timeline

Received
Validated
Last Scraped
Record Created

Additional Application Data

Latitude
55.9755428
Longitude
-3.181692

Application Summary

AI Summary

Internal revamp at 26 Madeira St: remove kitchen-living wall for 28 m open-plan space, add 2.7 m en-suite to Bedroom 1; no external works. .

Original Description

Create an open plan kitchen / living room by slapping down the dividing wall and create an en-suite in one of the bedrooms and related works.

Supporting Documents (5)