Planning application

25/01458/LBC

8 Carlton Street Stockbridge Edinburgh EH4 1NJ

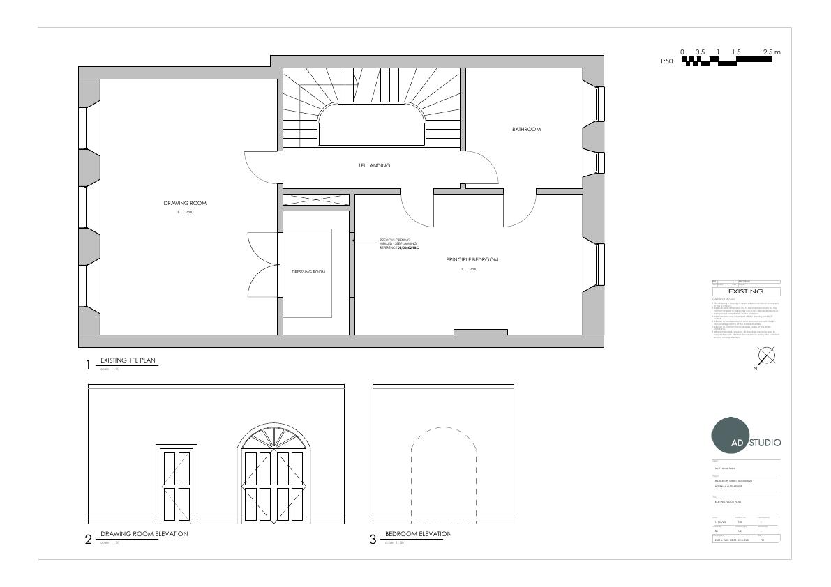
Listed townhouse tweak: block drawing-room doorway and add arched double doors from principal bedroom to dressing room; all works confined to first-floor interiors. .

Status: Permission Is Not RequiredCategory: Internal Works & AccessibilityReceived: 19 March 2025

Core Details

Reference
25/01458/LBC
Address
8 Carlton Street Stockbridge Edinburgh EH4 1NJ
Status
Permission Is Not Required
Category
Internal Works & Accessibility
Impact Scale
2/10

Timeline

Received
Validated
Last Scraped
Record Created

Additional Application Data

Latitude
55.9570373
Longitude
-3.2108983

Application Summary

AI Summary

Listed townhouse tweak: block drawing-room doorway and add arched double doors from principal bedroom to dressing room; all works confined to first-floor interiors. .

Original Description

Relocate access into first floor dressing room to be via master bedroom and make good drawing room wall.

Supporting Documents (4)