Planning application

25/01460/CLE

4F2 151 Bruntsfield Place Bruntsfield Edinburgh EH10 4EB

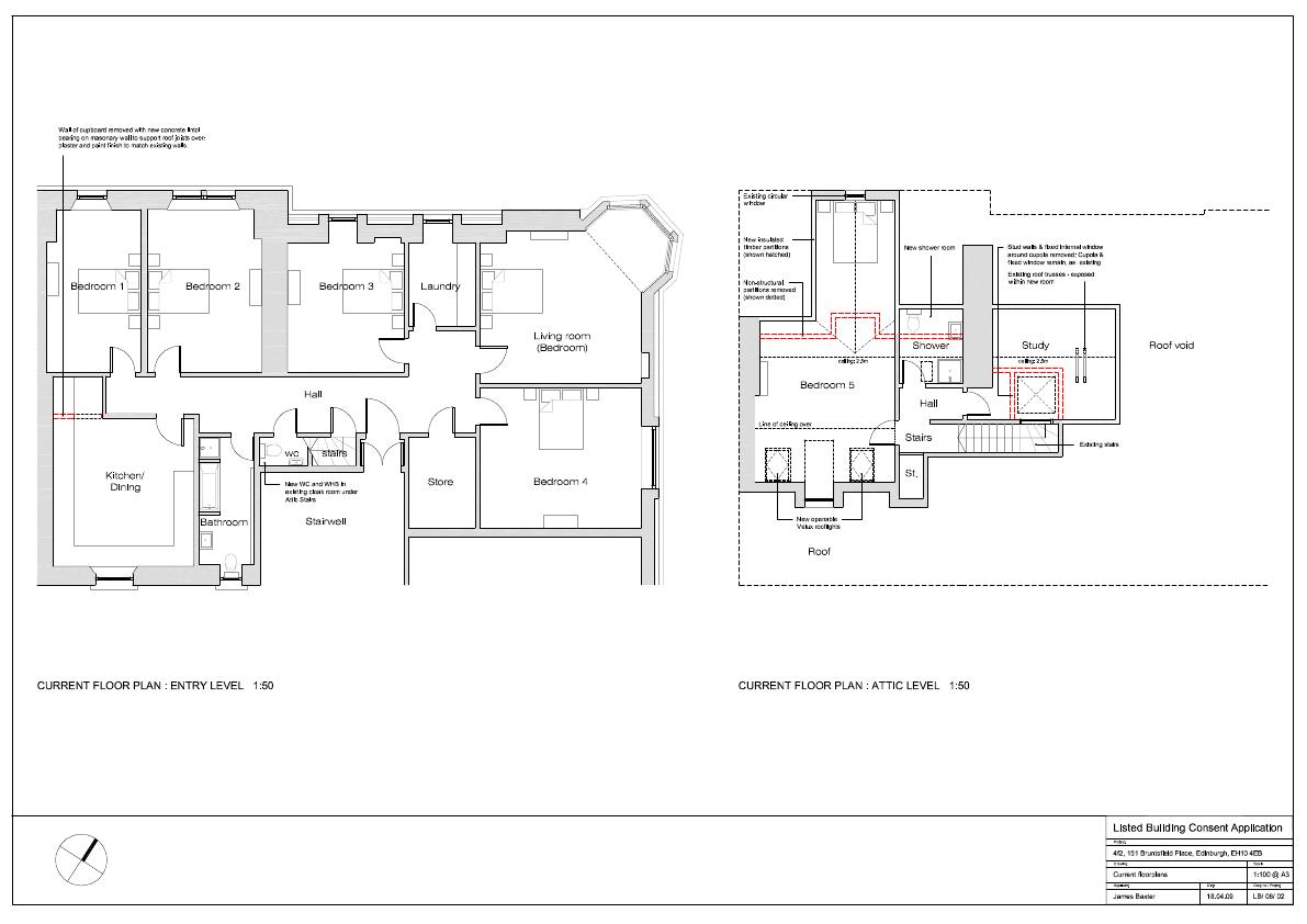
Seeks listed-building sign-off for existing 6-bed HMO at 151 Bruntsfield Pl; limited to internal partition tweaks, no exterior change. .

Status: Application GrantedCategory: Change of Use & ConversionsReceived: 19 March 2025

Core Details

Reference
25/01460/CLE
Address
4F2 151 Bruntsfield Place Bruntsfield Edinburgh EH10 4EB
Status
Application Granted
Category
Change of Use & Conversions
Impact Scale
2/10

Timeline

Received
Validated
Last Scraped
Record Created

Additional Application Data

Latitude
55.9361674
Longitude
-3.2085099

Application Summary

AI Summary

Seeks listed-building sign-off for existing 6-bed HMO at 151 Bruntsfield Pl; limited to internal partition tweaks, no exterior change. .

Original Description

Existing 6 bedroom HMO. It has been an HMO compliant property since 2001.

Supporting Documents (3)