Planning application

25/01461/FUL

43 East Croft Ratho Newbridge EH28 8PD

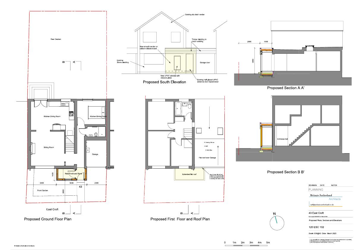
Single-storey porch extends 2 m across full front, creating an enclosed lobby and store with flat roof and matching render/cladding. .

Status: Application GrantedCategory: Extensions & EnlargementsReceived: 19 March 2025

Core Details

Reference
25/01461/FUL
Address
43 East Croft Ratho Newbridge EH28 8PD
Status
Application Granted
Category
Extensions & Enlargements
Impact Scale
2/10

Timeline

Received
Validated
Last Scraped
Record Created

Additional Application Data

Latitude
55.9234739
Longitude
-3.373246

Application Summary

AI Summary

Single-storey porch extends 2 m across full front, creating an enclosed lobby and store with flat roof and matching render/cladding. .

Original Description

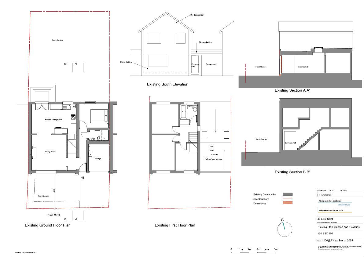
New single storey porch extension to front of house.

Supporting Documents (4)