Planning application

25/01465/LBC

3F2 14 Eyre Crescent Broughton Edinburgh EH3 5ET

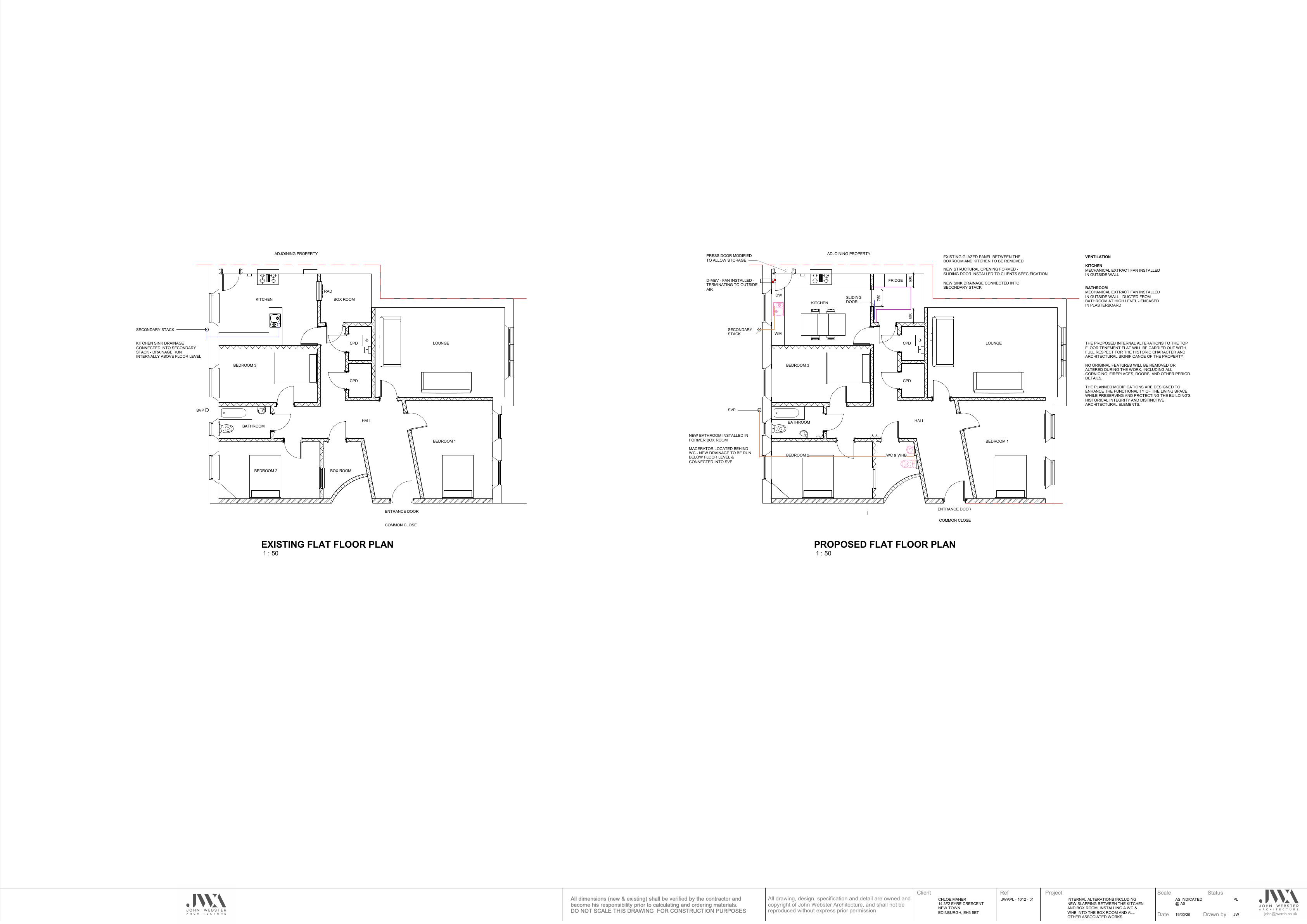
Create wider opening between kitchen and box room, convert part of box room into WC with basin; all changes confined to third-floor flat at 14 Eyre Crescent. .

Status: Permission Is Not RequiredCategory: Internal Works & AccessibilityReceived: 19 March 2025

Core Details

Reference
25/01465/LBC
Address
3F2 14 Eyre Crescent Broughton Edinburgh EH3 5ET
Status
Permission Is Not Required
Category
Internal Works & Accessibility
Impact Scale
2/10

Timeline

Received
Validated
Last Scraped
Record Created

Additional Application Data

Latitude
55.9616143
Longitude
-3.1998684

Application Summary

AI Summary

Create wider opening between kitchen and box room, convert part of box room into WC with basin; all changes confined to third-floor flat at 14 Eyre Crescent. .

Original Description

Internal alterations including new slapping between the kitchen and box room, installing a wc & whb into the box room and all other associated works.

Supporting Documents (3)