Planning application

25/01478/LBC

21 Alva Street New Town Edinburgh

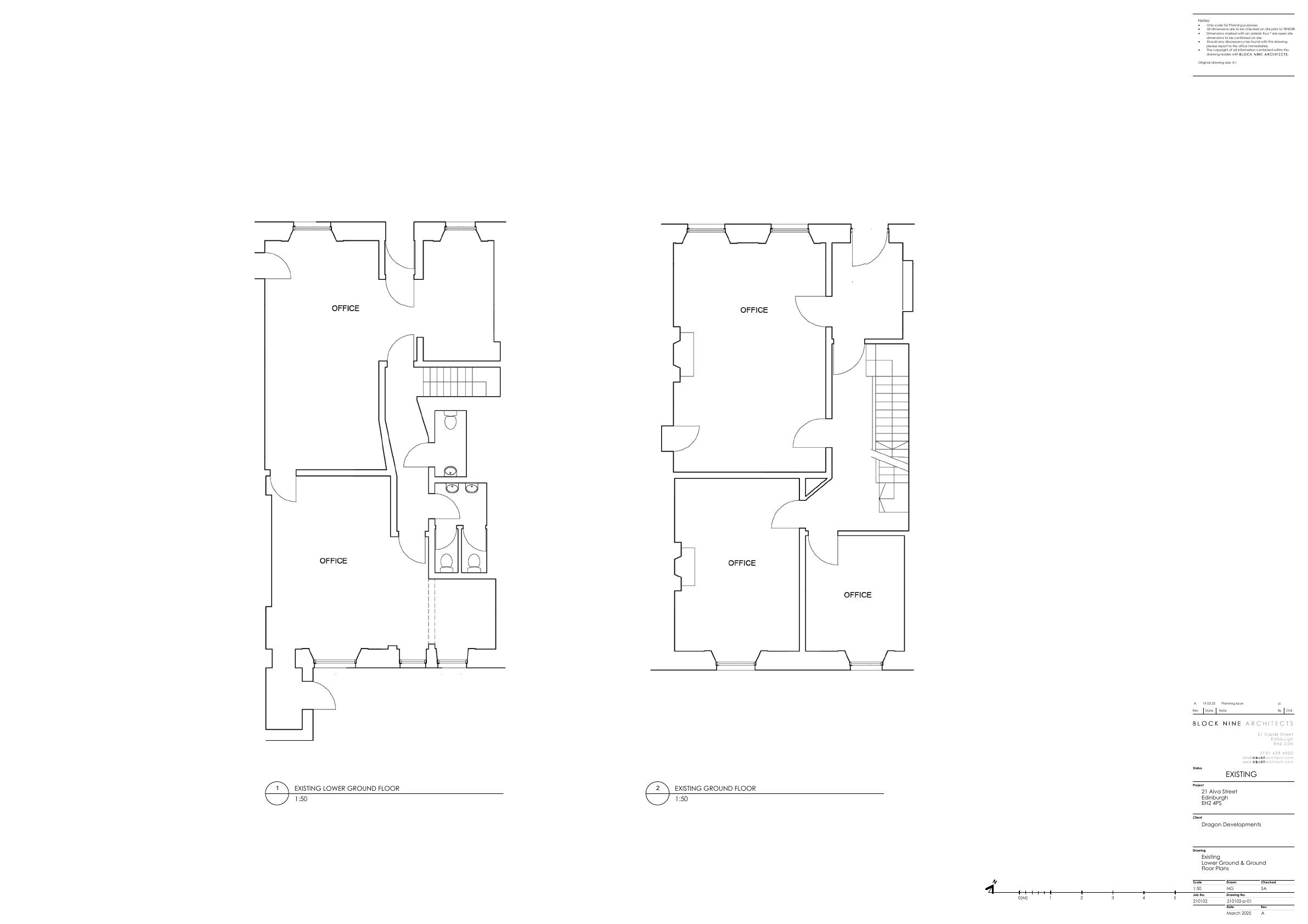
Retrospective conversion of four-storey Georgian townhouse at 21 Alva St from offices to multiple serviced apartments; mainly internal re-layout, minimal external change. .

Status: Application GrantedCategory: Change of Use & ConversionsReceived: 20 March 2025

Core Details

Reference
25/01478/LBC
Address
21 Alva Street New Town Edinburgh
Status
Application Granted
Category
Change of Use & Conversions
Impact Scale
4/10

Timeline

Received
Validated
Last Scraped
Record Created

Additional Application Data

Latitude
55.9501388
Longitude
-3.2105872

Application Summary

AI Summary

Retrospective conversion of four-storey Georgian townhouse at 21 Alva St from offices to multiple serviced apartments; mainly internal re-layout, minimal external change. .

Original Description

Alterations required for the conversion from offices to serviced apartments, in retrospect.

Supporting Documents (5)