Planning application

25/01493/FUL

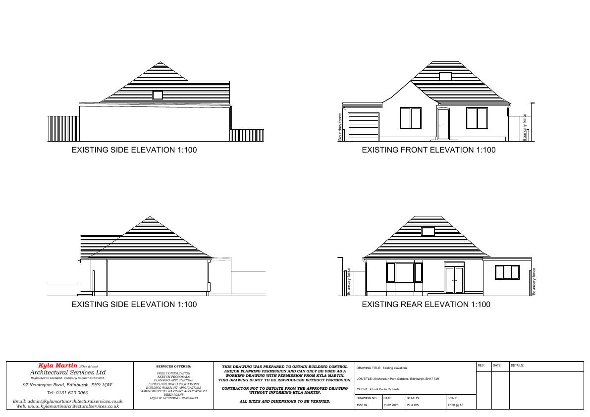
39 Moredun Park Gardens Moredun Edinburgh EH17 7JR

Add flat-roof slate-clad rear dormer to single bungalow, enlarging loft bedroom and adding en-suite; dark-grey UPVC windows, no other external changes. .

Status: Application GrantedCategory: Roof Works & DormersReceived: 21 March 2025

Core Details

Reference
25/01493/FUL
Address
39 Moredun Park Gardens Moredun Edinburgh EH17 7JR
Status
Application Granted
Category
Roof Works & Dormers
Impact Scale
2/10

Timeline

Received
Validated
Last Scraped
Record Created

Additional Application Data

Latitude
55.9128472
Longitude
-3.1431555

Application Summary

AI Summary

Add flat-roof slate-clad rear dormer to single bungalow, enlarging loft bedroom and adding en-suite; dark-grey UPVC windows, no other external changes. .

Original Description

Form new rear dormer window (as amened).

Supporting Documents (5)