Planning application

25/01500/FUL

53 Cramond Glebe Road Cramond Edinburgh EH4 6NT

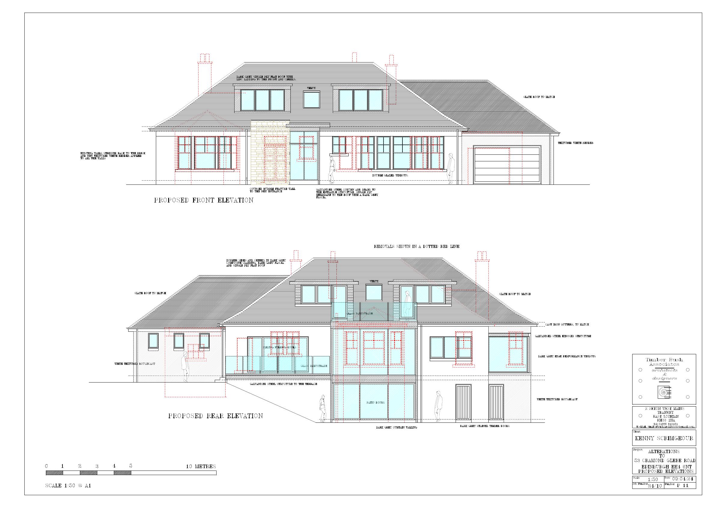
Single bungalow gains gabled roof, two rear dormers, stone-faced entrance, three-pane kitchen window, and garage rooflights, replacing former hipped ends without enlarging footprint. .

Status: Application GrantedCategory: Roof Works & DormersReceived: 21 March 2025

Core Details

Reference
25/01500/FUL
Address
53 Cramond Glebe Road Cramond Edinburgh EH4 6NT
Status
Application Granted
Category
Roof Works & Dormers
Impact Scale
4/10

Timeline

Received
Validated
Last Scraped
Record Created

Additional Application Data

Latitude
55.9784858
Longitude
-3.3008376

Application Summary

AI Summary

Single bungalow gains gabled roof, two rear dormers, stone-faced entrance, three-pane kitchen window, and garage rooflights, replacing former hipped ends without enlarging footprint. .

Original Description

Amended design to approved application 24/01752/ful. Existing hipped ends removed and the gables built up. 2 No. additional dormers to the rear elevation and amended front entrance feature. Windows to kitchen reduced in number to 3. garage roof amended with roof lights added.

Supporting Documents (5)