Planning application

25/01504/FUL

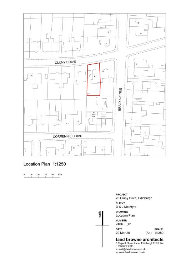
28 Cluny Drive Edinburgh EH10 6DP

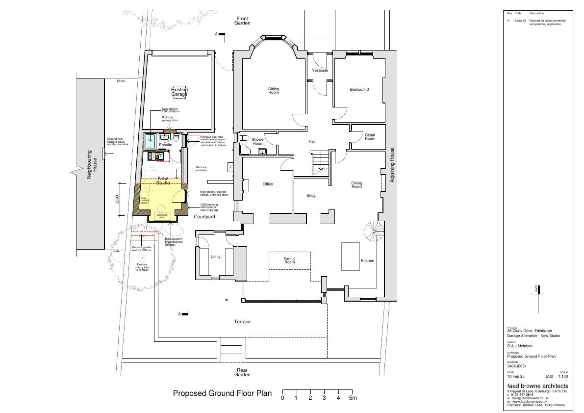
Adds 1-storey 34 m extension to existing rear store, creating studio + ensuite under flat zinc roof; glazed doors face courtyard, height 3.2 m, hidden from street. .

Status: Application GrantedCategory: Outbuildings & Ancillary StructuresReceived: 21 March 2025

Core Details

Reference
25/01504/FUL
Address
28 Cluny Drive Edinburgh EH10 6DP
Status
Application Granted
Category
Outbuildings & Ancillary Structures
Impact Scale
2/10

Timeline

Received
Validated
Last Scraped
Record Created

Additional Application Data

Latitude
55.9233989
Longitude
-3.2045272

Application Summary

AI Summary

Adds 1-storey 34 m extension to existing rear store, creating studio + ensuite under flat zinc roof; glazed doors face courtyard, height 3.2 m, hidden from street. .

Original Description

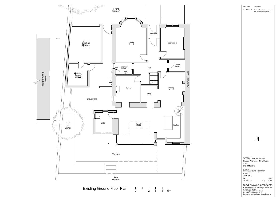
Extension to store at rear of garage to form studio space.

Supporting Documents (5)