Planning application

25/01508/LBC

37 Melville Street Edinburgh

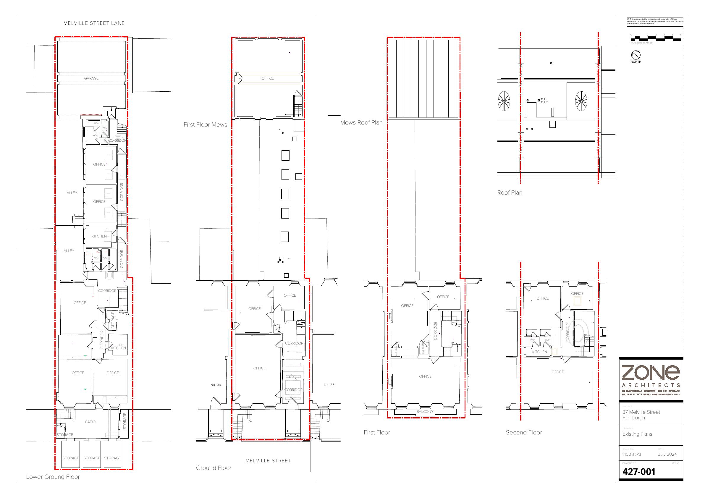
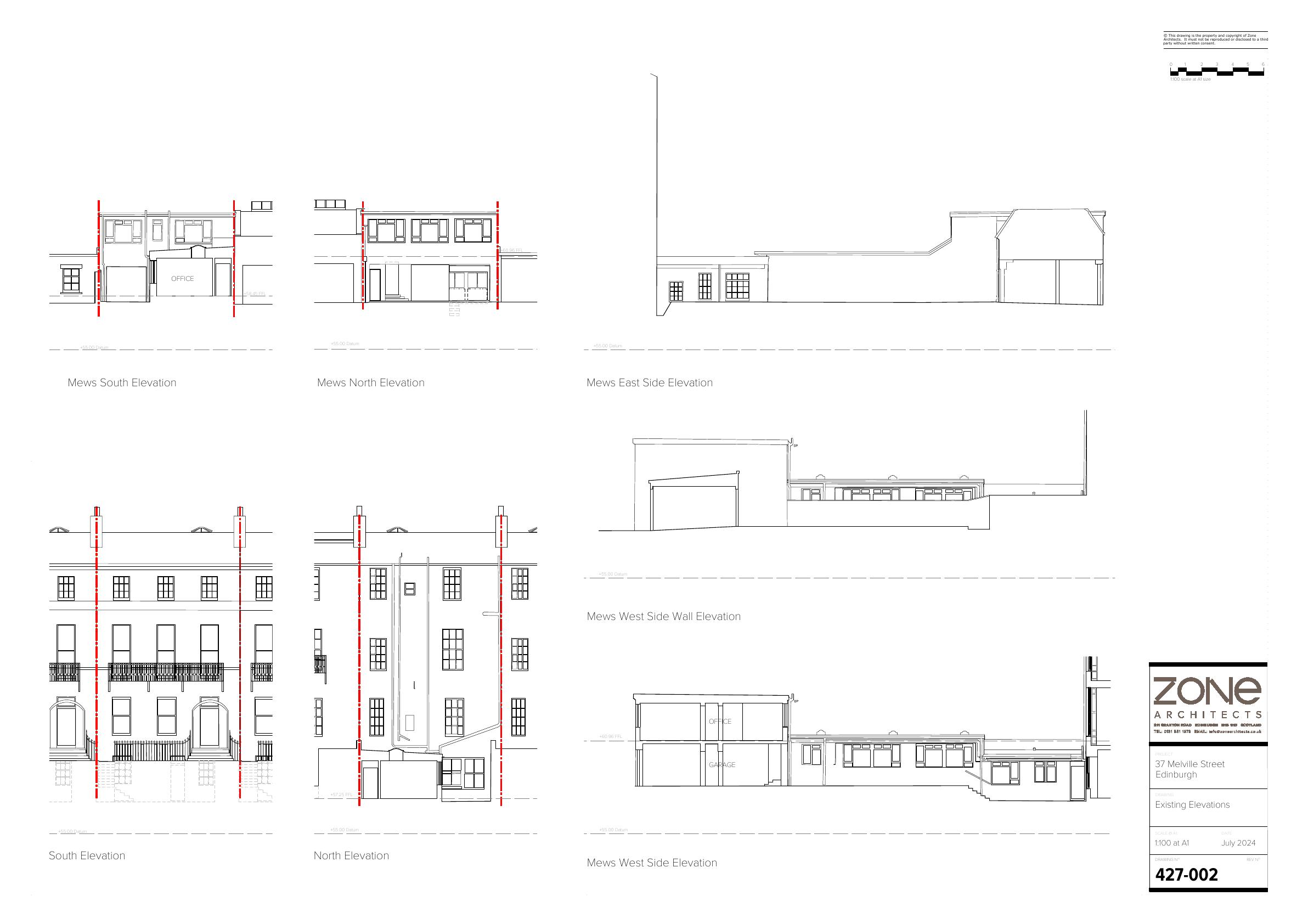
Second-floor bathroom reworked; two offices become WCs; historic cupola and rooflight reinstated; like-for-like window replacement on north and south elevations. .

Status: Awaiting AssessmentCategory: Internal Works & AccessibilityReceived: 21 March 2025

Core Details

Reference
25/01508/LBC
Address
37 Melville Street Edinburgh
Status
Awaiting Assessment
Category
Internal Works & Accessibility
Impact Scale
2/10

Timeline

Received
21 March 2025
Validated
21 March 2025
Last Scraped
1 October 2025
Record Created
28 March 2025

Application Summary

AI Summary

Second-floor bathroom reworked; two offices become WCs; historic cupola and rooflight reinstated; like-for-like window replacement on north and south elevations. .

Original Description

Internal alterations to an existing bathroom on the second floor. Re-instating a cupola and roof light. Replacing existing windows on the North and South elevations. Drainage alterations to convert two office spaces to WC's (as amended).

Related Applications (2)

  • 25/06474/LBCAwaiting Assessment(10 December 2025)

    Reconfigure interior of 37 Melville St townhouse, forming structural opening between front and rear ground-floor rooms and updating internal fixtures and finishes. .

  • 25/04174/LBCApplication Granted(13 August 2025)

    Replacing townhouses current windows with double-glazed timber sash-and-case units to match original style, boosting efficiency while preserving faade. .

Supporting Documents (5)