Planning application

25/01513/FUL

1 Ashley Drive Edinburgh EH11 1RP

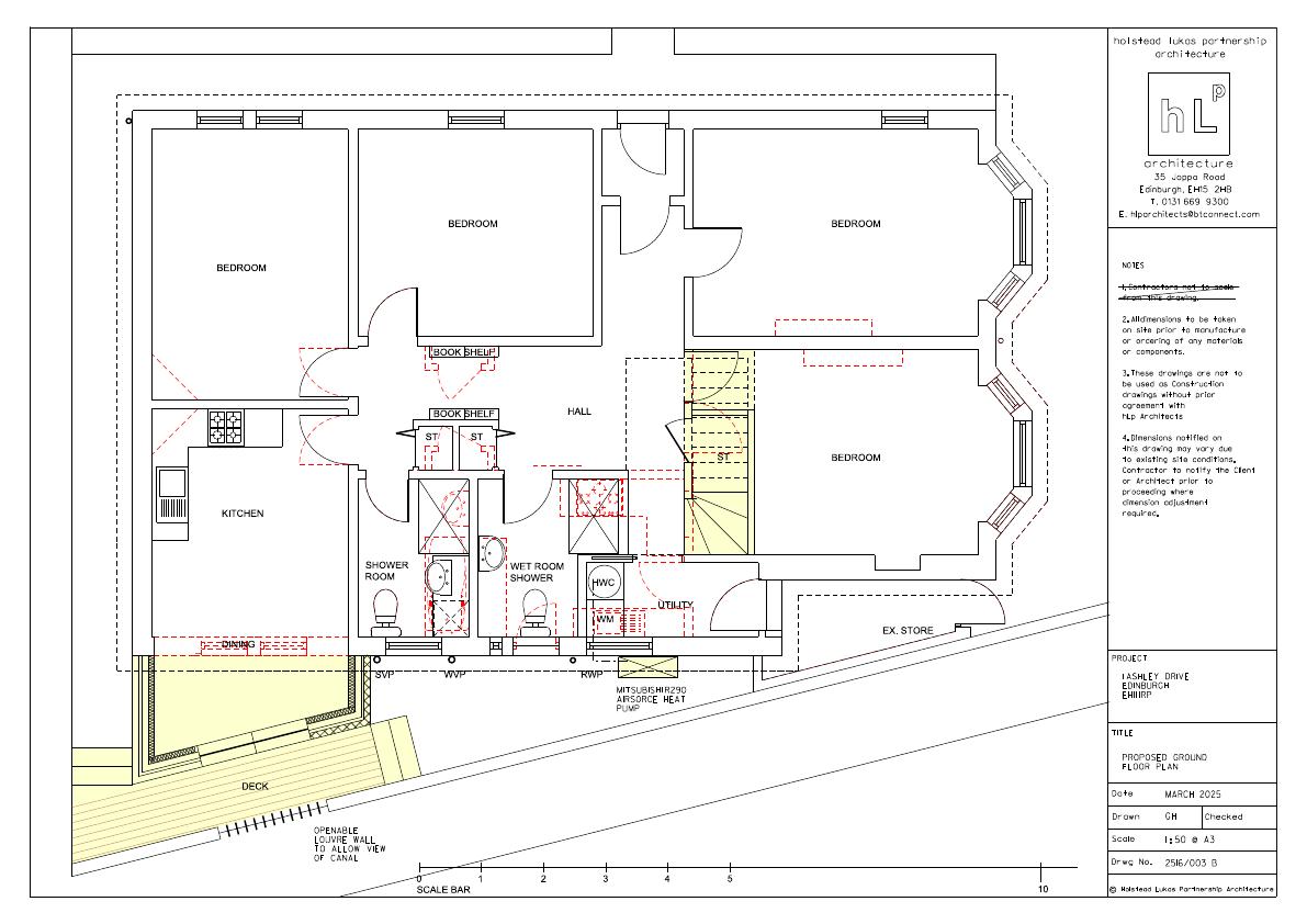
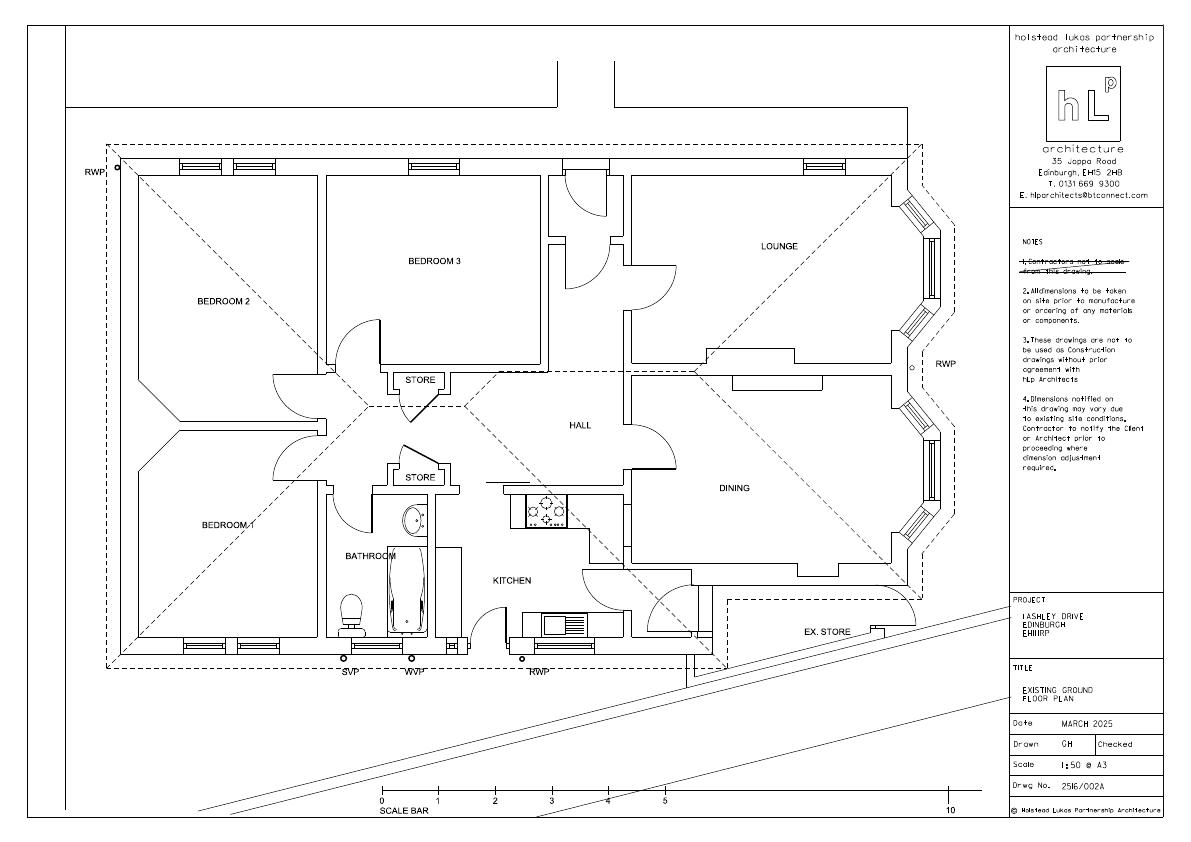
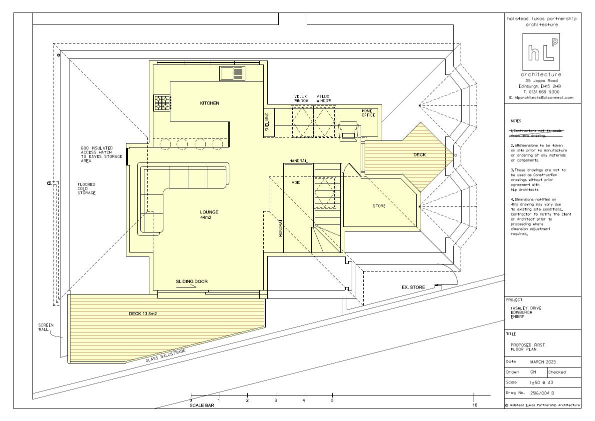
Reconfigures single dwelling with modest rear extension, internal stair, and full loft conversion; large front/rear dormers create open-plan kitchen-lounge, decks and home office overlooking canal. .

Status: Application GrantedCategory: Extensions & EnlargementsReceived: 24 March 2025

Core Details

Reference
25/01513/FUL
Address
1 Ashley Drive Edinburgh EH11 1RP
Status
Application Granted
Category
Extensions & Enlargements
Impact Scale
5/10

Timeline

Received
Validated
Last Scraped
Record Created

Additional Application Data

Latitude
55.93068779999999
Longitude
-3.22752

Application Summary

AI Summary

Reconfigures single dwelling with modest rear extension, internal stair, and full loft conversion; large front/rear dormers create open-plan kitchen-lounge, decks and home office overlooking canal. .

Original Description

Extension to rear and attic conversion with new dormers to front and rear and associated alterations.

Supporting Documents (5)