Planning application

25/01516/FUL

8 Bankhead Crossway South Edinburgh EH11 4EP

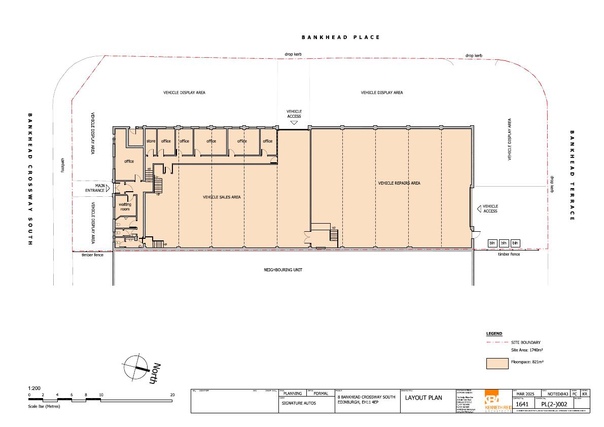
Bankhead Crossway South warehouse re-designated for 821 m car showroom, repair bays and forecourt display, retaining existing shell. .

Status: Application GrantedCategory: Change of Use & ConversionsReceived: 24 March 2025

Core Details

Reference
25/01516/FUL
Address
8 Bankhead Crossway South Edinburgh EH11 4EP
Status
Application Granted
Category
Change of Use & Conversions
Impact Scale
3/10

Timeline

Received
Validated
Last Scraped
Record Created

Additional Application Data

Latitude
55.9245325
Longitude
-3.2973962

Application Summary

AI Summary

Bankhead Crossway South warehouse re-designated for 821 m car showroom, repair bays and forecourt display, retaining existing shell. .

Original Description

Application for change of use in retrospect from Class 6 to vehicle sales / display and vehicle repair / maintenance premises.

Supporting Documents (3)