Planning application

25/01520/CLP

58A March Road Blackhall Edinburgh EH4 3SZ

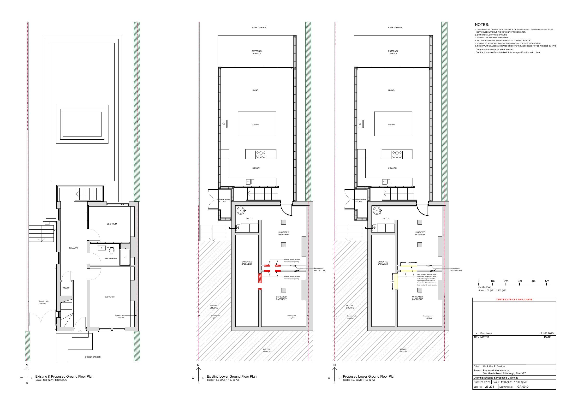
Basement walls at 58A March Rd widened to merge lower-ground rooms into a larger open-plan space; no external works or footprint change. .

Status: Application GrantedCategory: Internal Works & AccessibilityReceived: 24 March 2025

Core Details

Reference
25/01520/CLP
Address
58A March Road Blackhall Edinburgh EH4 3SZ
Status
Application Granted
Category
Internal Works & Accessibility
Impact Scale
2/10

Timeline

Received
Validated
Last Scraped
Record Created

Additional Application Data

Latitude
55.9600468
Longitude
-3.263715

Application Summary

AI Summary

Basement walls at 58A March Rd widened to merge lower-ground rooms into a larger open-plan space; no external works or footprint change. .

Original Description

Form new enlarged structural openings to basement of existing dwelling.

Supporting Documents (3)