Planning application

25/01522/FUL

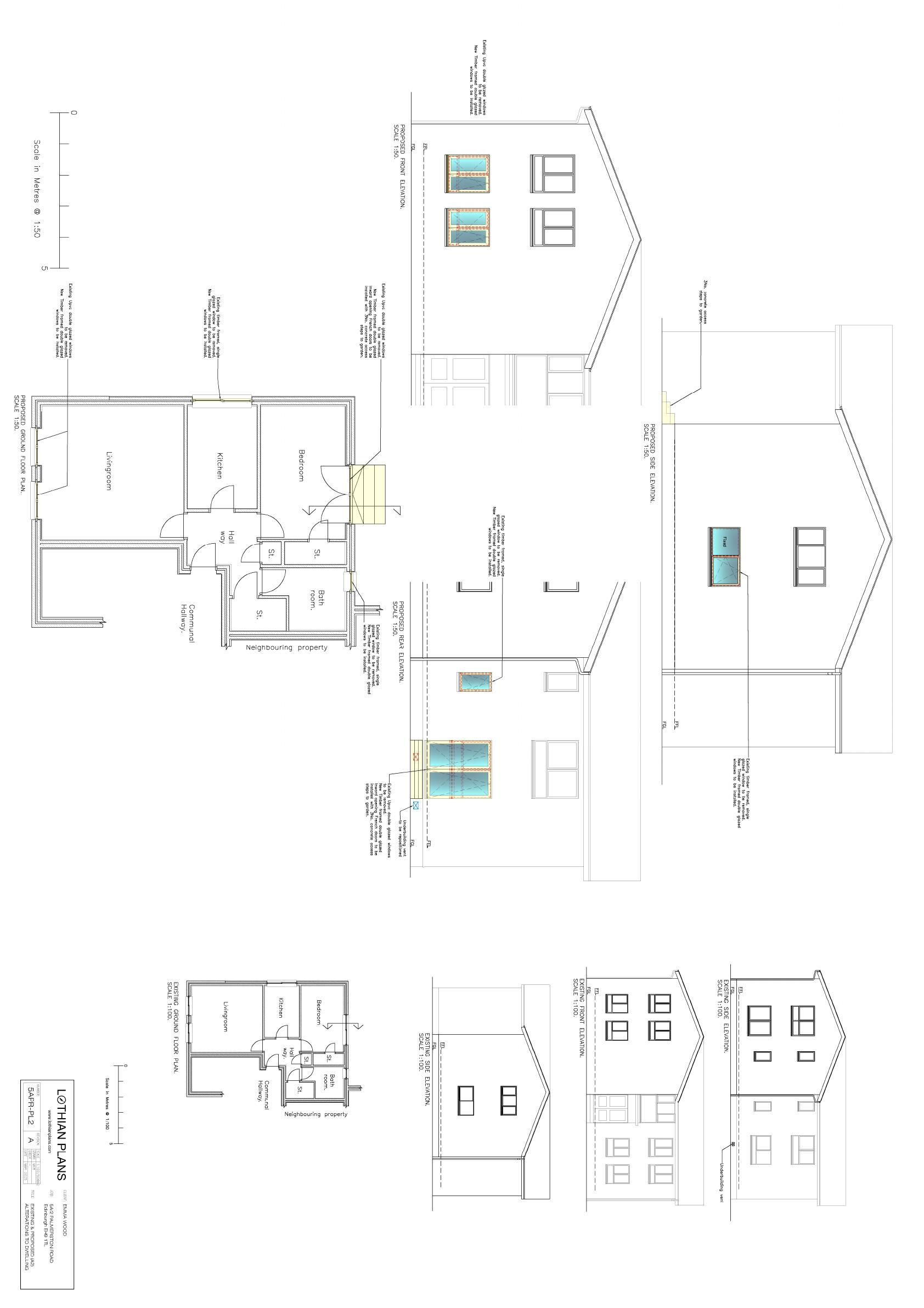
GF2 5A Palmerston Road Edinburgh EH9 1TL

Swap one rear window for a glazed garden door, install three new timber windows, and add exterior steps for direct garden access. .

Status: Application GrantedCategory: Windows, Doors & GlazingReceived: 24 March 2025

Core Details

Reference
25/01522/FUL
Address
GF2 5A Palmerston Road Edinburgh EH9 1TL
Status
Application Granted
Category
Windows, Doors & Glazing
Impact Scale
2/10

Timeline

Received
Validated
Last Scraped
Record Created

Additional Application Data

Latitude
55.9364066
Longitude
-3.1925876

Application Summary

AI Summary

Swap one rear window for a glazed garden door, install three new timber windows, and add exterior steps for direct garden access. .

Original Description

Window alterations (AS AMENDED)

Supporting Documents (3)