Planning application

25/01523/FUL

15 Cumin Place Grange Edinburgh EH9 2JX

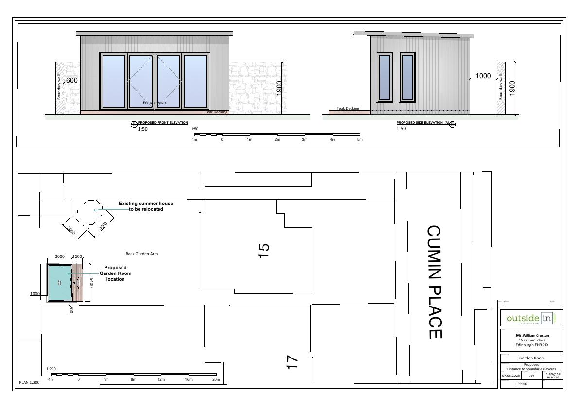
Single-storey timber garden room (3.6 m 3 m, 2.5 m high) with glazed frontage and small deck at rear of No.15 Cumin Place; replaces/relocates current summerhouse, no trees or access affected. .

Status: Application GrantedCategory: Outbuildings & Ancillary StructuresReceived: 24 March 2025

Core Details

Reference
25/01523/FUL
Address
15 Cumin Place Grange Edinburgh EH9 2JX
Status
Application Granted
Category
Outbuildings & Ancillary Structures
Impact Scale
2/10

Timeline

Received
Validated
Last Scraped
Record Created

Additional Application Data

Latitude
55.934923
Longitude
-3.1852667

Application Summary

AI Summary

Single-storey timber garden room (3.6 m 3 m, 2.5 m high) with glazed frontage and small deck at rear of No.15 Cumin Place; replaces/relocates current summerhouse, no trees or access affected. .

Original Description

Install a timber garden room to be used as a incidental garden room for personal use.

Supporting Documents (5)