Planning application

25/01536/FUL

34 Queen's Crescent Edinburgh EH9 2BA

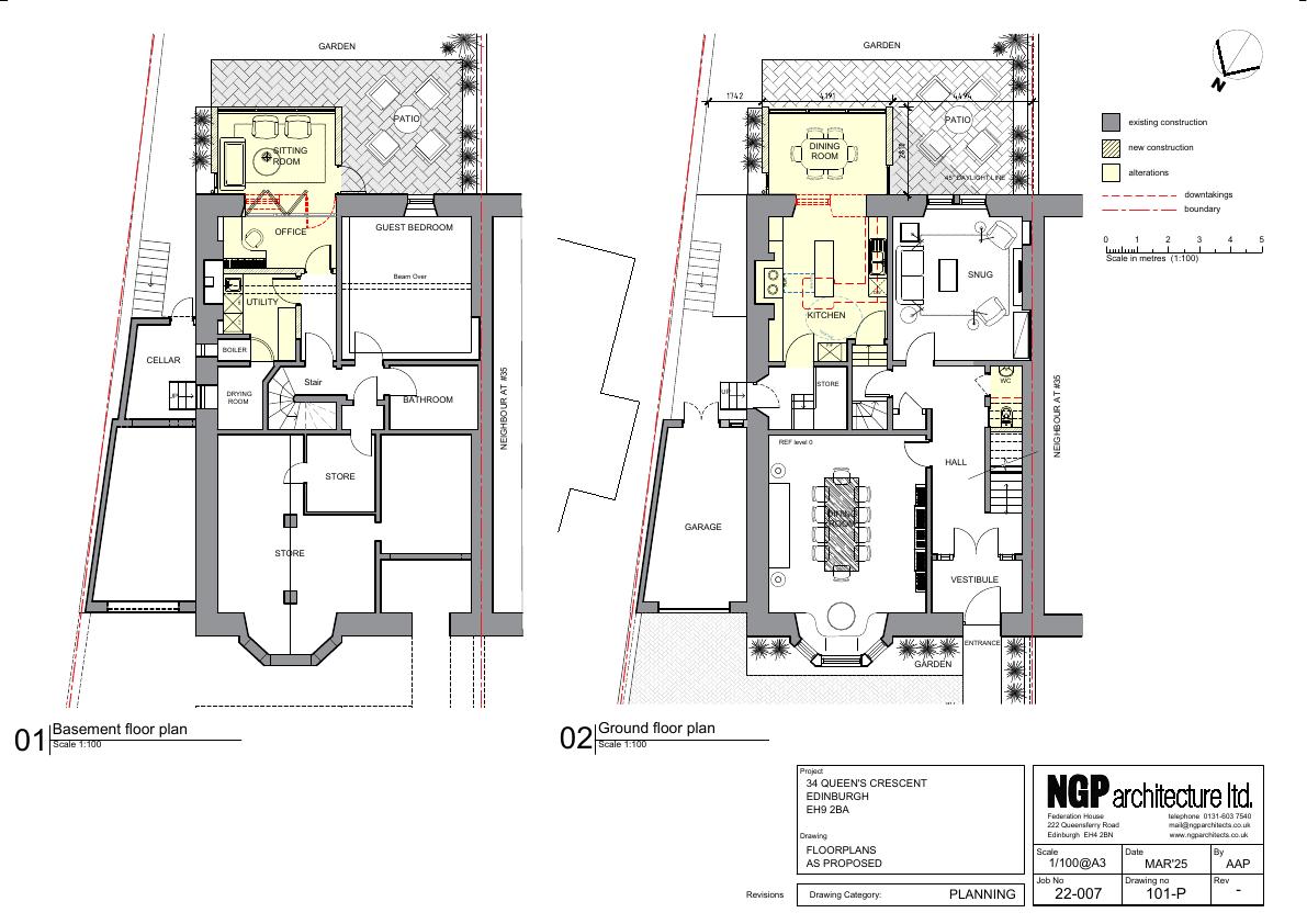
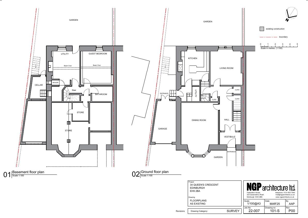
Two-storey flat-roof rear addition enlarges kitchen/dining at ground and creates basement sitting room; existing roof lantern swapped for slimmer framed skylight. .

Status: Application GrantedCategory: Extensions & EnlargementsReceived: 24 March 2025

Core Details

Reference
25/01536/FUL
Address
34 Queen's Crescent Edinburgh EH9 2BA
Status
Application Granted
Category
Extensions & Enlargements
Impact Scale
4/10

Timeline

Received
Validated
Last Scraped
Record Created

Additional Application Data

Latitude
55.9339163
Longitude
-3.1711008

Application Summary

AI Summary

Two-storey flat-roof rear addition enlarges kitchen/dining at ground and creates basement sitting room; existing roof lantern swapped for slimmer framed skylight. .

Original Description

Two storey rear flat roof extension for new dining and living space and replacement of lantern roof light on main roof.

Supporting Documents (5)