Planning application

25/01554/CLP

70 The Spinney Hyvots Bank Edinburgh EH17 7LE

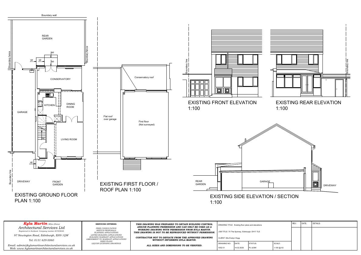
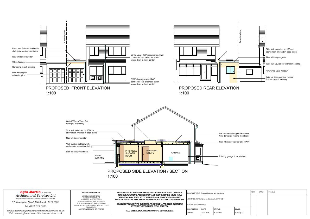
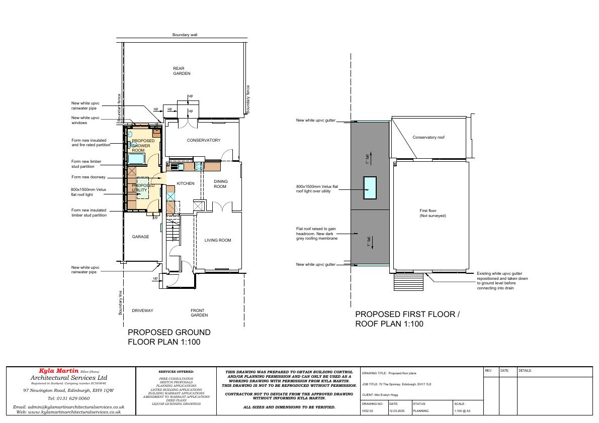
Convert rear of attached garage into utility and shower room, raise flat roof by 150 mm with Velux, block rear door, add small rear window; front garage door retainedno footprint change. .

Status: Application GrantedCategory: Change of Use & ConversionsReceived: 25 March 2025

Core Details

Reference
25/01554/CLP
Address
70 The Spinney Hyvots Bank Edinburgh EH17 7LE
Status
Application Granted
Category
Change of Use & Conversions
Impact Scale
2/10

Timeline

Received
Validated
Last Scraped
Record Created

Additional Application Data

Latitude
55.9075752
Longitude
-3.1392428

Application Summary

AI Summary

Convert rear of attached garage into utility and shower room, raise flat roof by 150 mm with Velux, block rear door, add small rear window; front garage door retainedno footprint change. .

Original Description

Part garage conversion with alterations to flat roof and rear window.

Supporting Documents (5)