Planning application

25/01559/LBC

32 Annandale Street Lane Edinburgh EH7 4LS

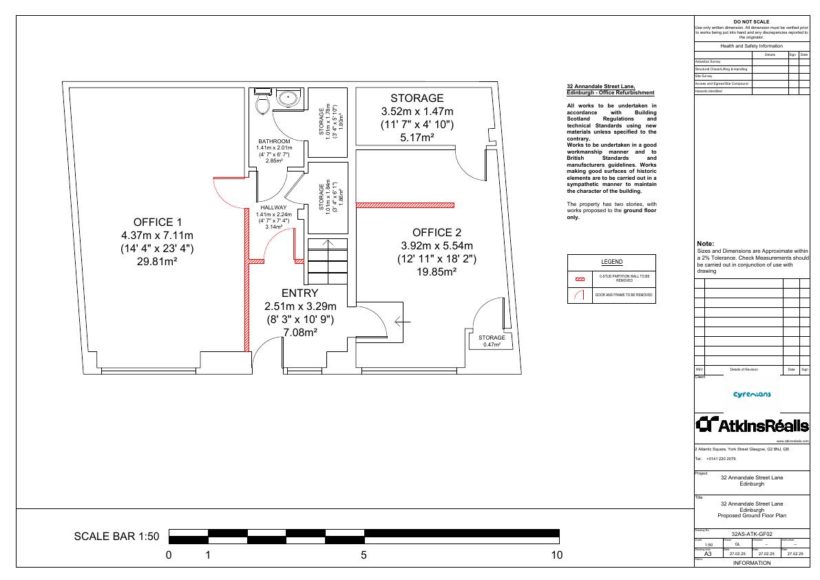
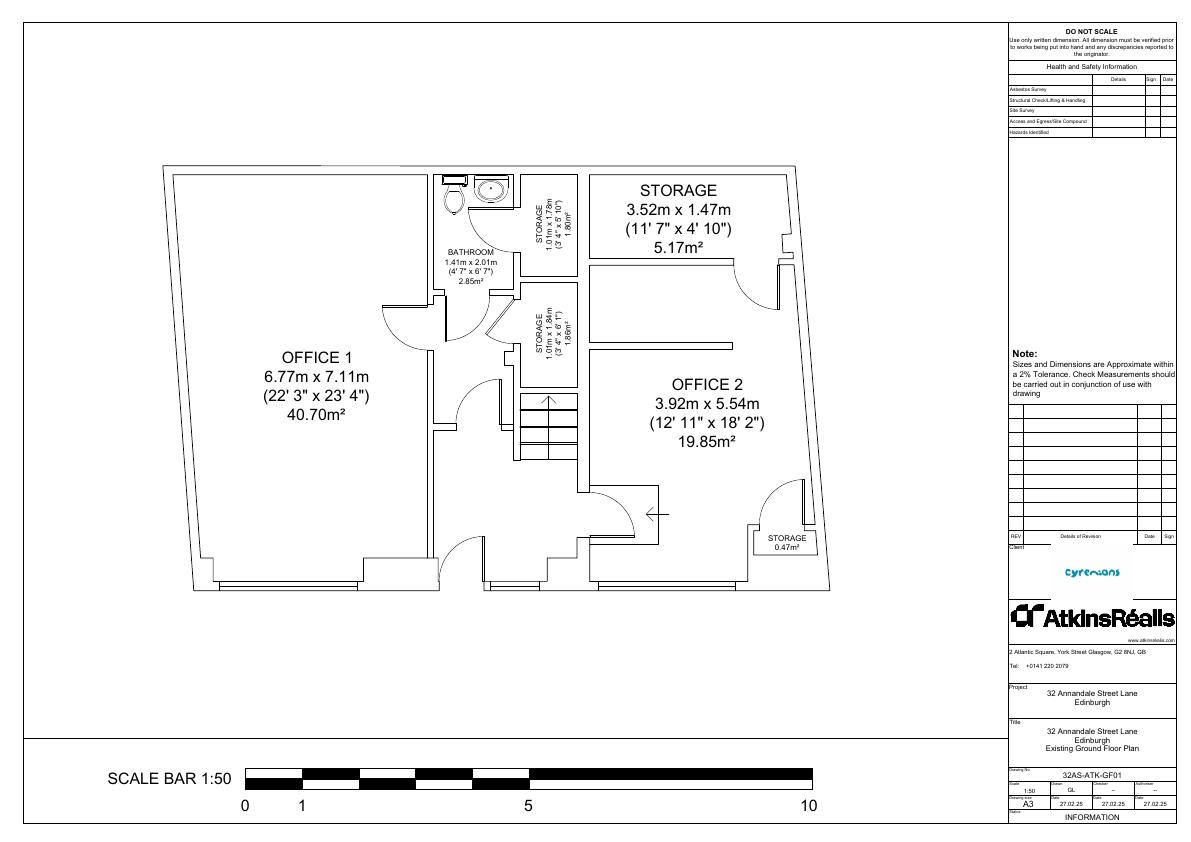
Ground-floor office at 32 Annandale Street Lane to be re-planned: non-loadbearing walls and doors stripped, new entry hall formed, surfaces repaired, and mechanical/electrical routes realigned.

Status: Permission Is Not RequiredCategory: Internal Works & AccessibilityReceived: 25 March 2025

Core Details

Reference
25/01559/LBC
Address
32 Annandale Street Lane Edinburgh EH7 4LS
Status
Permission Is Not Required
Category
Internal Works & Accessibility
Impact Scale
2/10

Timeline

Received
Validated
Last Scraped
Record Created

Additional Application Data

Latitude
55.9607484
Longitude
-3.1826825

Application Summary

AI Summary

Ground-floor office at 32 Annandale Street Lane to be re-planned: non-loadbearing walls and doors stripped, new entry hall formed, surfaces repaired, and mechanical/electrical routes realigned.

Original Description

Removal of internal partition walls, associated doors, sympathetically making walls good ceiling and floor coverings, as well as reconfiguration of associated M&E.

Supporting Documents (4)