Planning application

25/01564/FUL

Flat 1 13 Cluny Gardens Edinburgh EH10 6BH

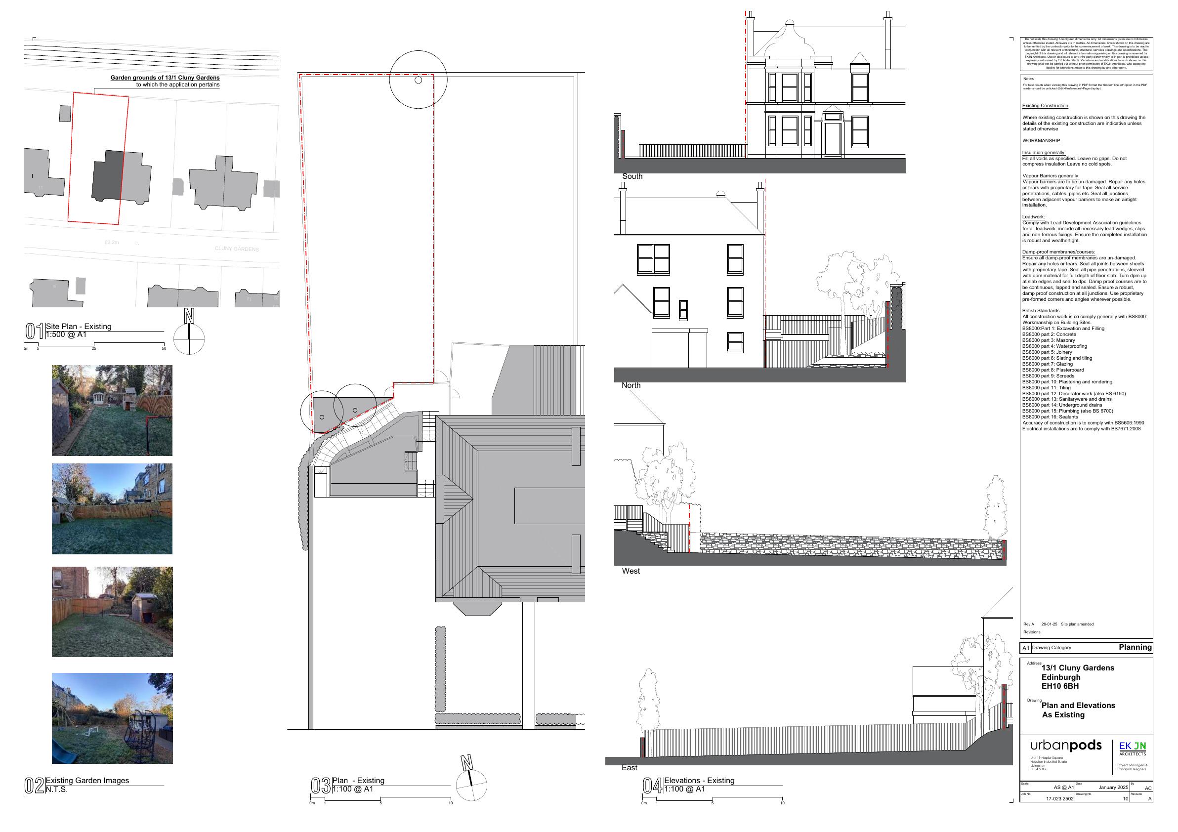
Timber-clad, flat-roof garden pod at rear boundary; single storey with full-height glazing, no impact on house structure or trees, reached via existing garden path. .

Status: Application GrantedCategory: Outbuildings & Ancillary StructuresReceived: 25 March 2025

Core Details

Reference
25/01564/FUL
Address
Flat 1 13 Cluny Gardens Edinburgh EH10 6BH
Status
Application Granted
Category
Outbuildings & Ancillary Structures
Impact Scale
2/10

Timeline

Received
25 March 2025
Validated
25 March 2025
Last Scraped
1 October 2025
Record Created
1 April 2025

Application Summary

AI Summary

Timber-clad, flat-roof garden pod at rear boundary; single storey with full-height glazing, no impact on house structure or trees, reached via existing garden path. .

Original Description

Building a garden room in the rear of the back garden. Re-submission following withdrawal of application 25/00380/FUL.

Related Applications (1)

  • 25/00380/FULApplication Withdrawn(24 January 2025)

    Timber-clad, single-storey garden pod at rear boundary with glazed frontage and flat roof, set behind existing trees and stone wall. .

Supporting Documents (4)