Planning application

25/01566/FUL

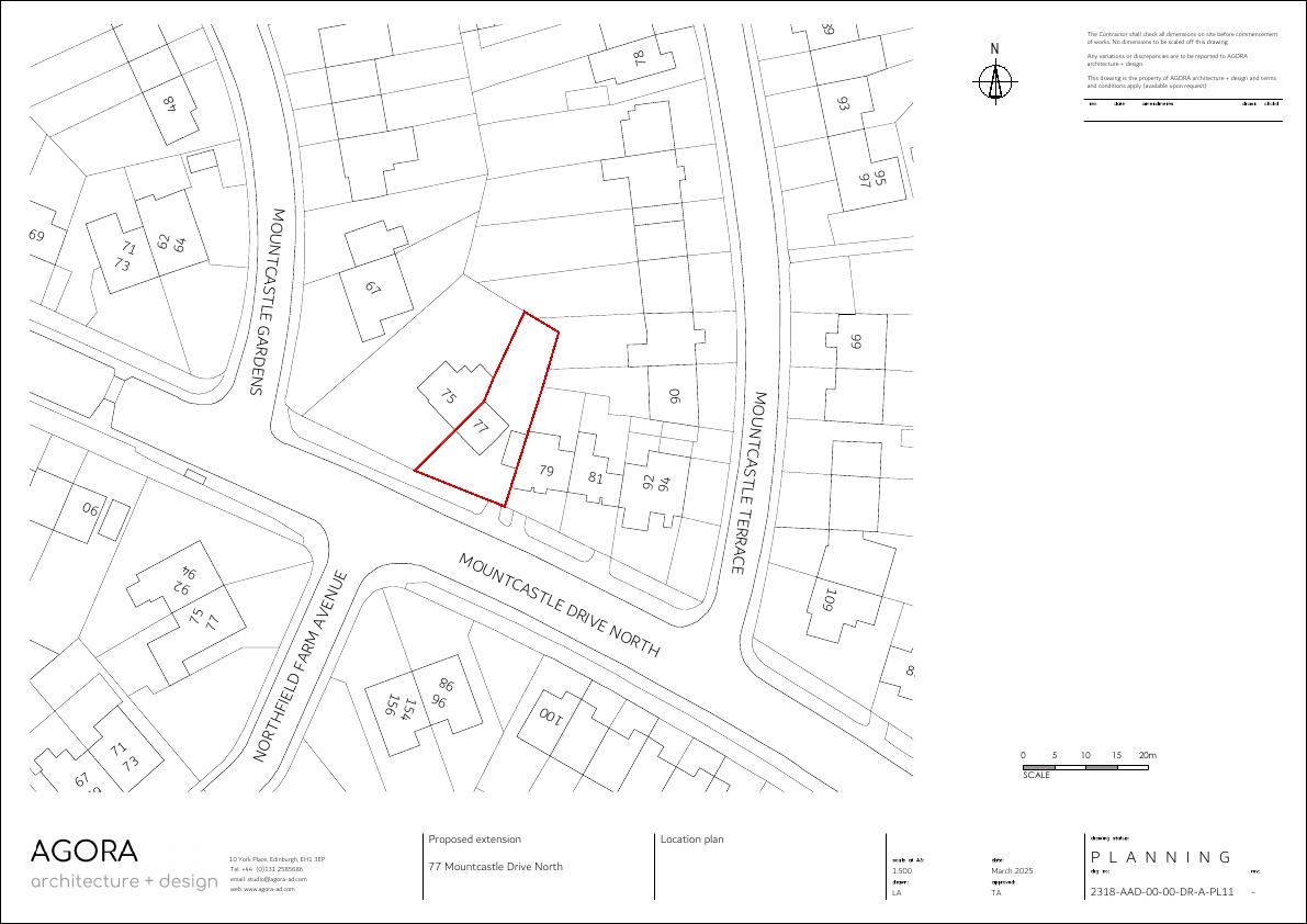
77 Mountcastle Drive North Mountcastle Edinburgh EH8 7ST

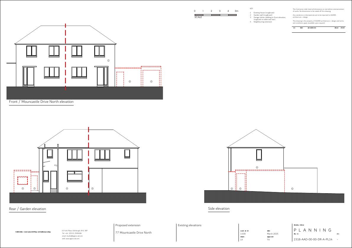
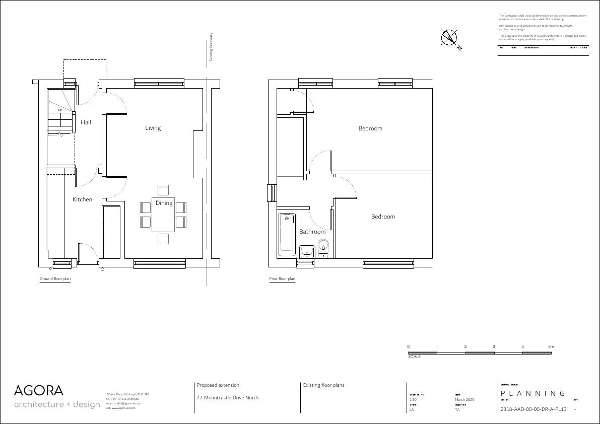
Remove single garage; build matching two-storey side wing to expand kitchen-diner below and add bedroom-bath above, all within existing plot, drive and garden retained. .

Status: Application GrantedCategory: Extensions & EnlargementsReceived: 25 March 2025

Core Details

Reference
25/01566/FUL
Address
77 Mountcastle Drive North Mountcastle Edinburgh EH8 7ST
Status
Application Granted
Category
Extensions & Enlargements
Impact Scale
4/10

Timeline

Received
Validated
Last Scraped
Record Created

Additional Application Data

Latitude
55.9515485
Longitude
-3.1306053

Application Summary

AI Summary

Remove single garage; build matching two-storey side wing to expand kitchen-diner below and add bedroom-bath above, all within existing plot, drive and garden retained. .

Original Description

Removal of detached garage to side of house. Addition of two storey side extension.

Supporting Documents (5)