Planning application

25/01571/FUL

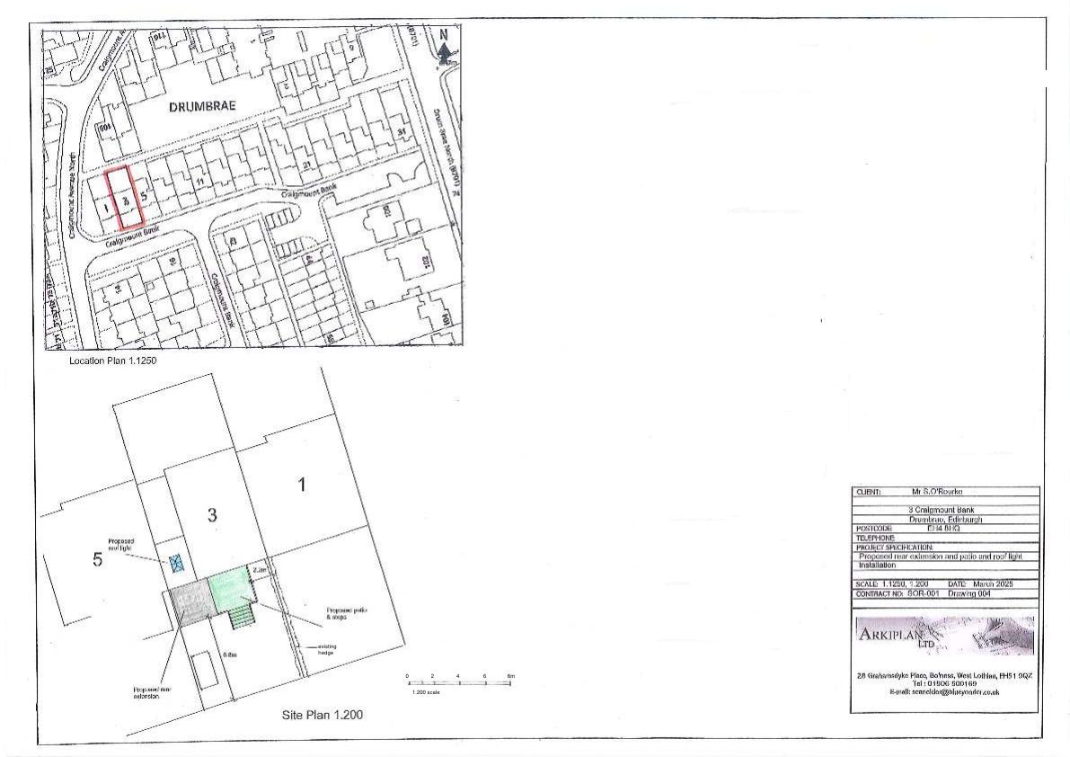
3 Craigmount Bank Craigmount Edinburgh EH4 8HQ

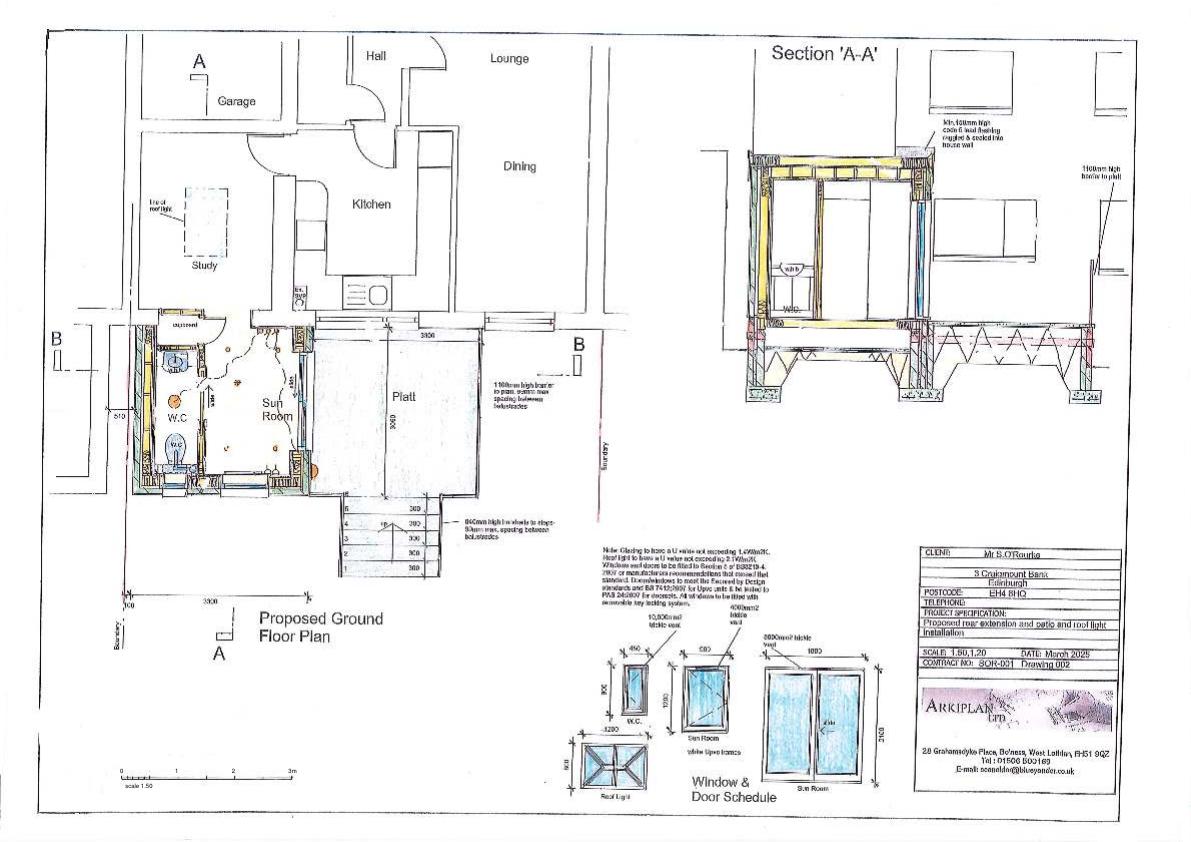
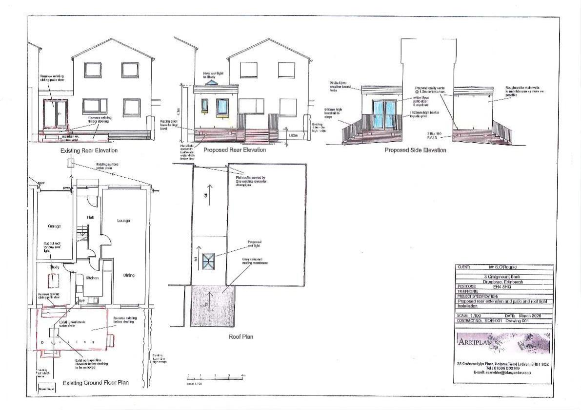
Single-storey flat-roof rear extension adds sun room and WC, projects ~3 m, includes rooflight, patio steps and balustrade; frontage and overall house height remain unchanged. .

Status: Application GrantedCategory: Extensions & EnlargementsReceived: 25 March 2025

Core Details

Reference
25/01571/FUL
Address
3 Craigmount Bank Craigmount Edinburgh EH4 8HQ
Status
Application Granted
Category
Extensions & Enlargements
Impact Scale
2/10

Timeline

Received
Validated
Last Scraped
Record Created

Additional Application Data

Latitude
55.9557904
Longitude
-3.3010143

Application Summary

AI Summary

Single-storey flat-roof rear extension adds sun room and WC, projects ~3 m, includes rooflight, patio steps and balustrade; frontage and overall house height remain unchanged. .

Original Description

Proposed erection of extension forming sun room and w.c. to rear of dwelling house.

Supporting Documents (5)