Planning application

25/01581/FUL

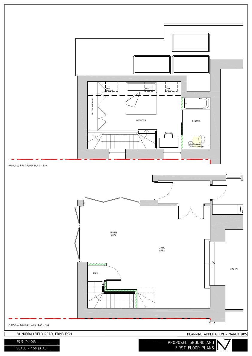
28 Murrayfield Road Edinburgh EH12 6ER

Reworks internal layout to create larger bedroom with ensuite and wardrobes, adjusts ground-floor hall walls, and adds a single conservation rooflight on the north roof slope. .

Status: Application GrantedCategory: Roof Works & DormersReceived: 26 March 2025

Core Details

Reference
25/01581/FUL
Address
28 Murrayfield Road Edinburgh EH12 6ER
Status
Application Granted
Category
Roof Works & Dormers
Impact Scale
2/10

Timeline

Received
Validated
Last Scraped
Record Created

Additional Application Data

Latitude
55.9482058
Longitude
-3.247538

Application Summary

AI Summary

Reworks internal layout to create larger bedroom with ensuite and wardrobes, adjusts ground-floor hall walls, and adds a single conservation rooflight on the north roof slope. .

Original Description

Proposed Internal alterations and rooflight.

Supporting Documents (5)