Planning application

25/01600/FUL

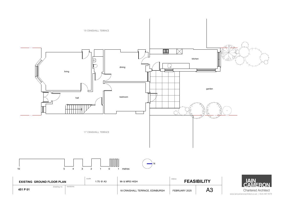
18 Craighall Terrace Trinity Edinburgh EH6 4RF

Single-storey flat-roof rear extension to terrace house, enlarging kitchen/dining into garden; no street-facing height change, minimal wider impact. .

Status: Application GrantedCategory: Extensions & EnlargementsReceived: 26 March 2025

Core Details

Reference
25/01600/FUL
Address
18 Craighall Terrace Trinity Edinburgh EH6 4RF
Status
Application Granted
Category
Extensions & Enlargements
Impact Scale
3/10

Timeline

Received
Validated
Last Scraped
Record Created

Additional Application Data

Latitude
55.9738641
Longitude
-3.1973242

Application Summary

AI Summary

Single-storey flat-roof rear extension to terrace house, enlarging kitchen/dining into garden; no street-facing height change, minimal wider impact. .

Original Description

Proposed single storey extension to the rear of the property.

Supporting Documents (5)