Planning application

25/01623/LBC

3F2 6 Nelson Street Edinburgh EH3 6LG

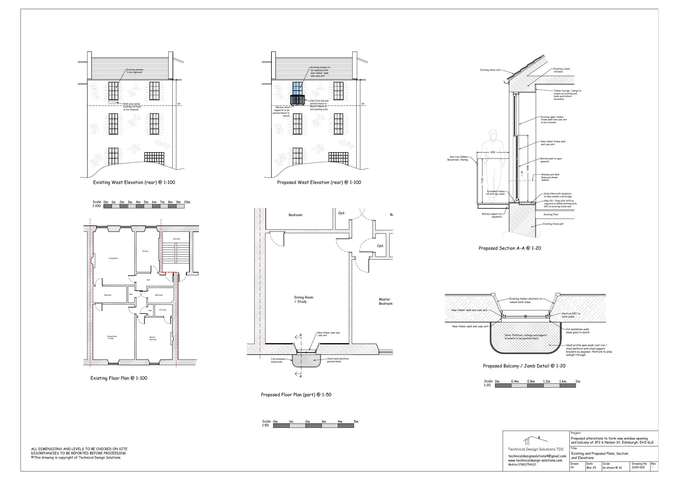
Third-floor rear window widened to full-height timber sash; slimline steel Juliet balcony added to serve dining room, minimal fabric removal within New Town tenement. .

Status: Application RefusedCategory: Windows, Doors & GlazingReceived: 27 March 2025

Core Details

Reference
25/01623/LBC
Address
3F2 6 Nelson Street Edinburgh EH3 6LG
Status
Application Refused
Category
Windows, Doors & Glazing
Impact Scale
2/10

Timeline

Received
Validated
Last Scraped
Record Created

Additional Application Data

Latitude
55.9568426
Longitude
-3.1964842

Application Summary

AI Summary

Third-floor rear window widened to full-height timber sash; slimline steel Juliet balcony added to serve dining room, minimal fabric removal within New Town tenement. .

Original Description

Make existing window larger with cut down installing larger sash and case with a new exterior balcony.

Supporting Documents (3)