Planning application

25/01627/FUL

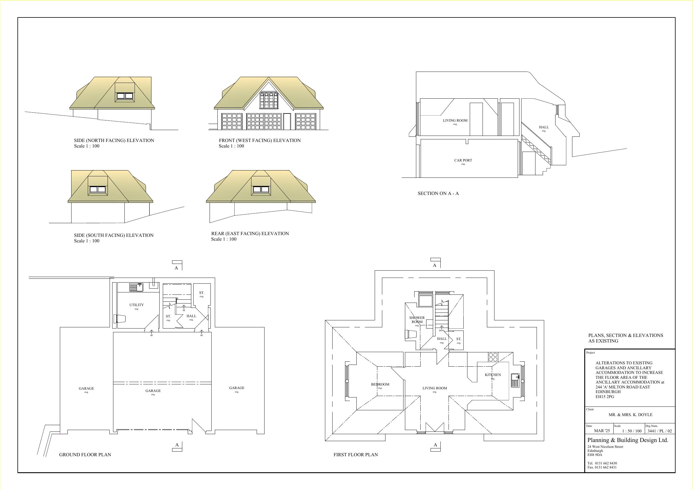
244A Milton Road East Joppa Edinburgh EH15 2PG

Expands the flat above the triple garage with full-width rear extension, new dormers and balcony, enlarging first-floor living space while ground-level parking and footprint stay largely unchanged.

Status: Application GrantedCategory: Outbuildings & Ancillary StructuresReceived: 27 March 2025

Core Details

Reference
25/01627/FUL
Address
244A Milton Road East Joppa Edinburgh EH15 2PG
Status
Application Granted
Category
Outbuildings & Ancillary Structures
Impact Scale
3/10

Timeline

Received
Validated
Last Scraped
Record Created

Additional Application Data

Latitude
55.946289
Longitude
-3.0871766

Application Summary

AI Summary

Expands the flat above the triple garage with full-width rear extension, new dormers and balcony, enlarging first-floor living space while ground-level parking and footprint stay largely unchanged.

Original Description

Alterations to existing garage and ancillary accommodation to increase the floor area of the ancillary accommodation. (Resubmission).

Supporting Documents (4)