Planning application

25/01630/FUL

166 Kingsknowe Road North Edinburgh EH14 2EE

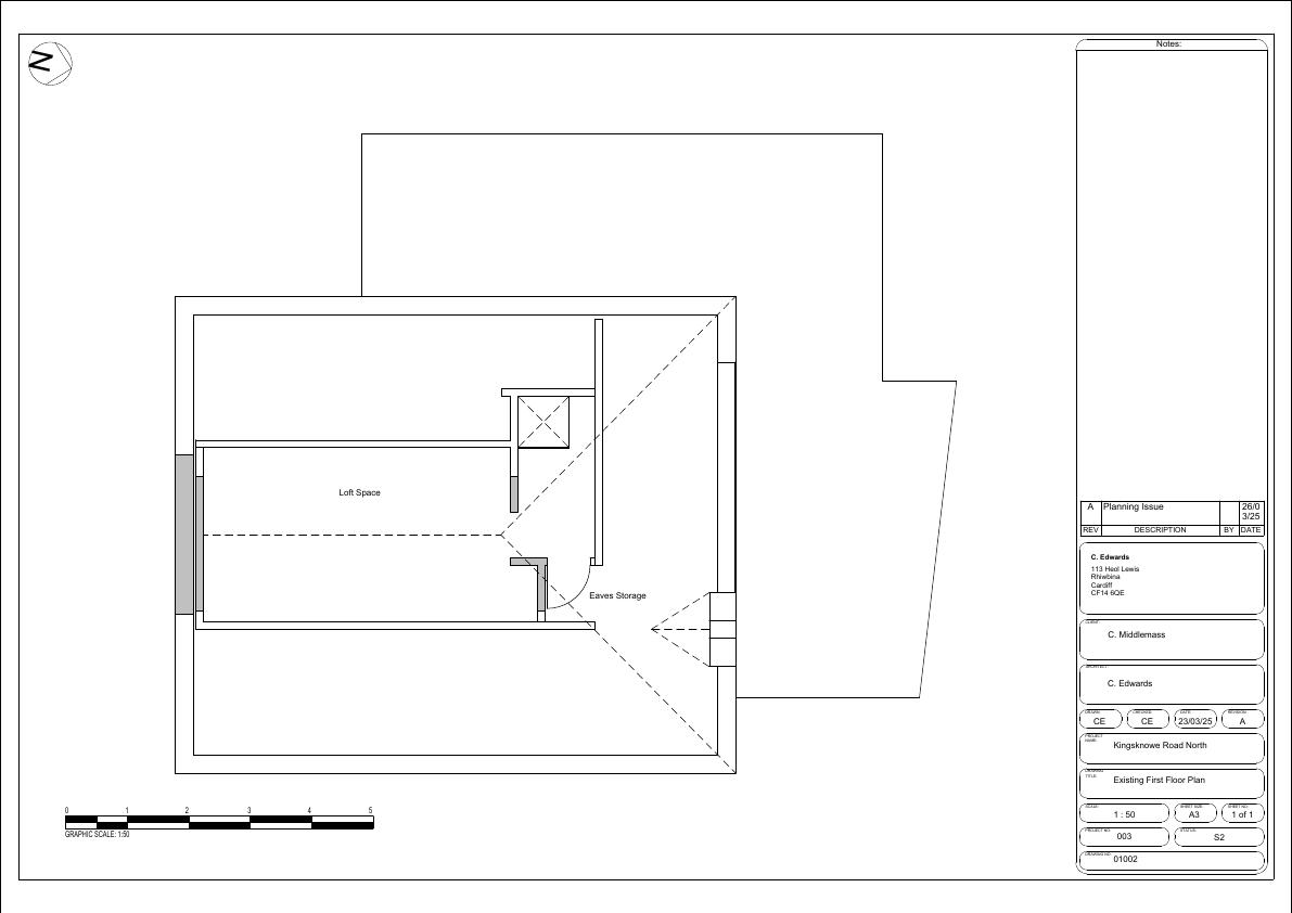
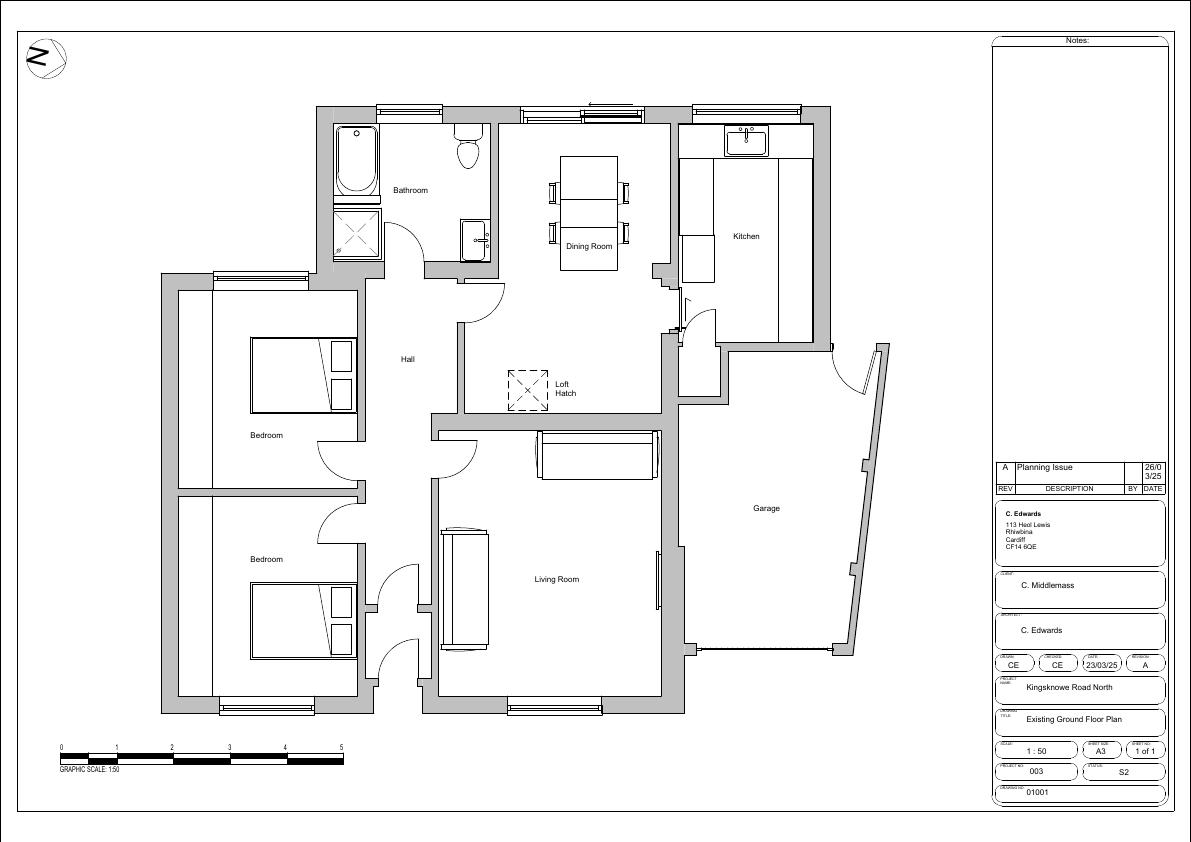
Add rear dormer and front/side roof-lights to bungalows existing loft, boosting headroom and natural light without altering footprint; minimal street impact in suburban cul-de-sac. .

Status: Application GrantedCategory: Roof Works & DormersReceived: 27 March 2025

Core Details

Reference
25/01630/FUL
Address
166 Kingsknowe Road North Edinburgh EH14 2EE
Status
Application Granted
Category
Roof Works & Dormers
Impact Scale
3/10

Timeline

Received
Validated
Last Scraped
Record Created

Additional Application Data

Latitude
55.9199508
Longitude
-3.2653426

Application Summary

AI Summary

Add rear dormer and front/side roof-lights to bungalows existing loft, boosting headroom and natural light without altering footprint; minimal street impact in suburban cul-de-sac. .

Original Description

Proposed dormer and roof lights to existing loft conversion.

Supporting Documents (5)