Planning application

25/01634/FUL

8 Rankin Drive Blackford Edinburgh EH9 3AT

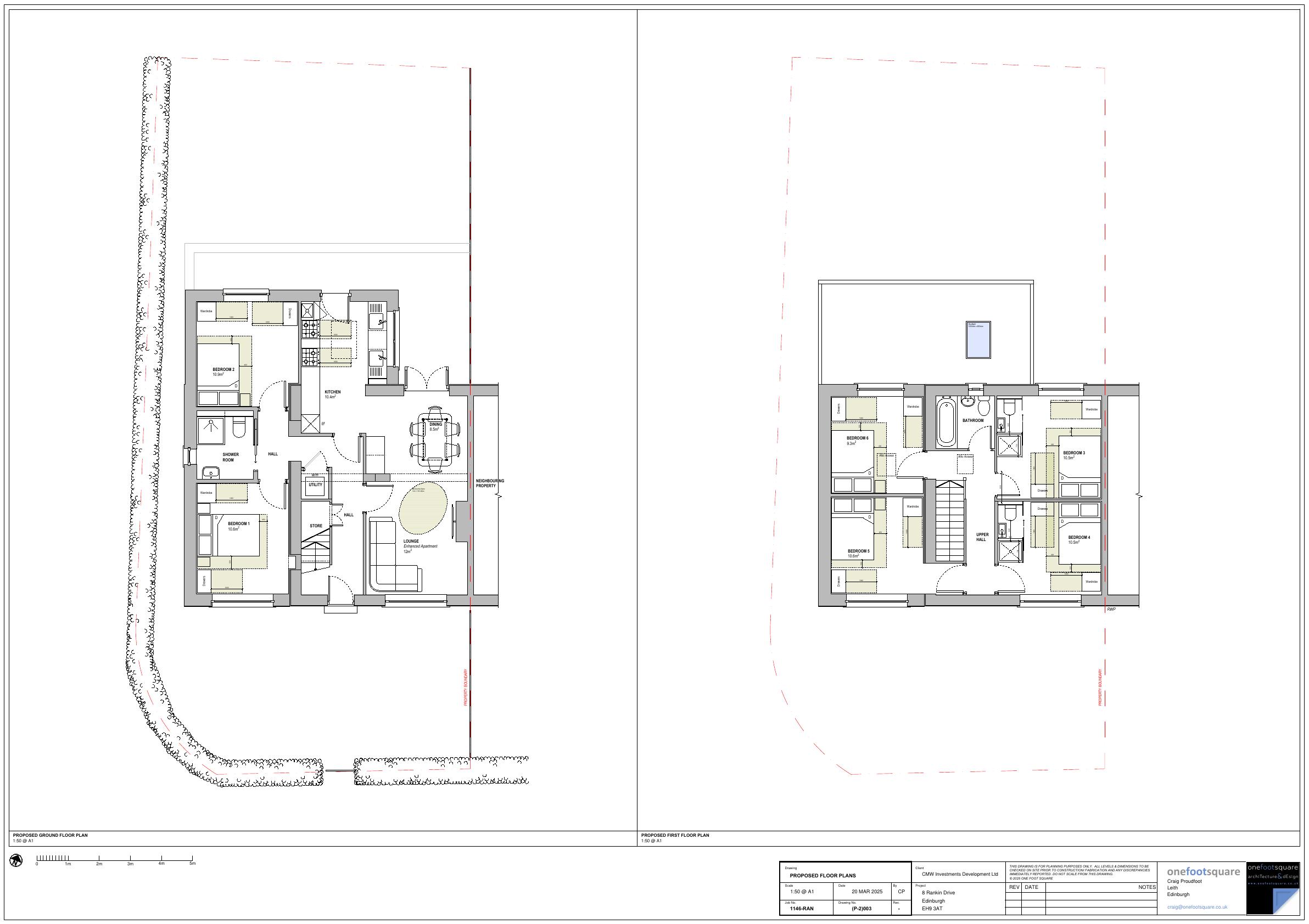
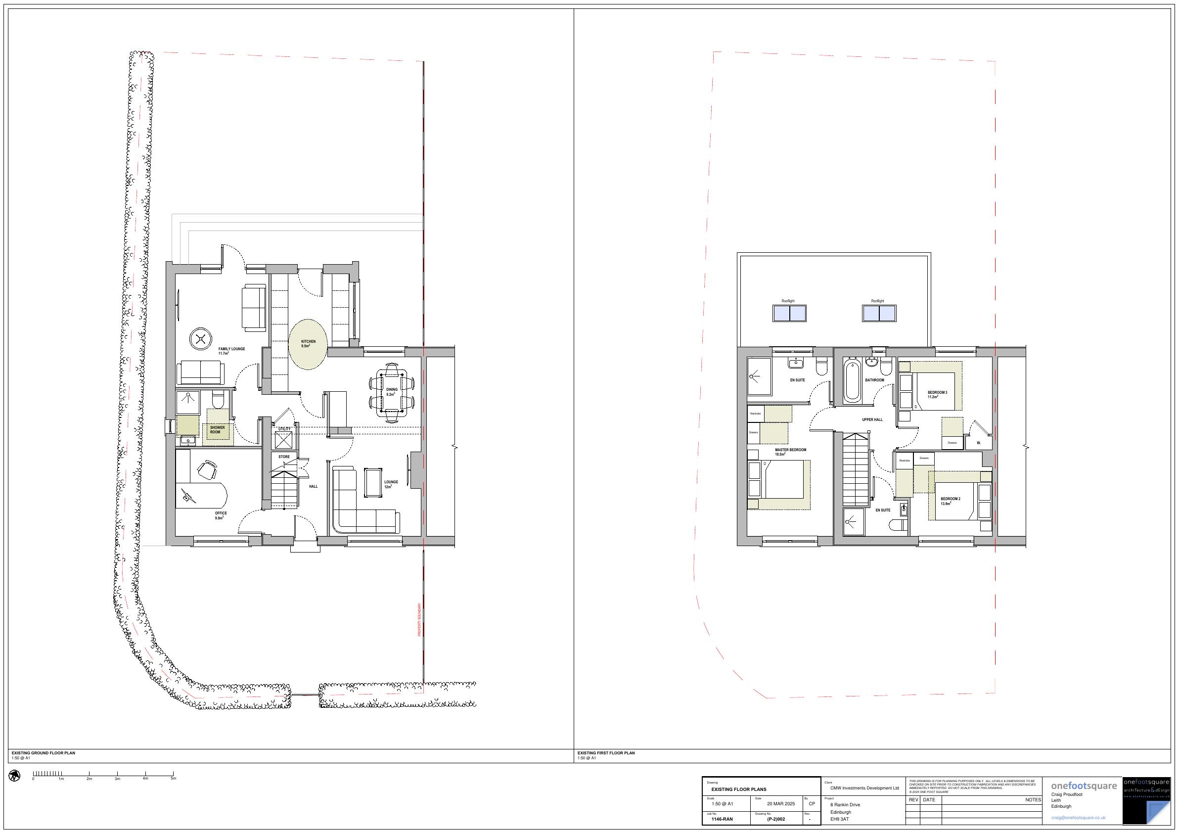
Detached home at 8 Rankin Drive reworked inside into six-bedroom HMO, adding shared kitchen-lounge, extra bathrooms and fire-safety upgrades, with no external changes.

Status: Application RefusedCategory: Change of Use & ConversionsReceived: 27 March 2025

Core Details

Reference
25/01634/FUL
Address
8 Rankin Drive Blackford Edinburgh EH9 3AT
Status
Application Refused
Category
Change of Use & Conversions
Impact Scale
2/10

Timeline

Received
27 March 2025
Validated
28 March 2025
Last Scraped
30 September 2025
Record Created
4 April 2025

Application Summary

AI Summary

Detached home at 8 Rankin Drive reworked inside into six-bedroom HMO, adding shared kitchen-lounge, extra bathrooms and fire-safety upgrades, with no external changes.

Original Description

Internal alterations and change of use from domestic to HMO with six bedrooms.

Related Applications (2)

  • 25/05805/FULAwaiting decision(4 November 2025)

    Creates an accessible off-street bay with drop-kerb, removes a section of hedge and re-faces the low masonry wall in vertical timber to tidy the frontage. .

  • 25/01908/FULApplication Refused(10 April 2025)

    New single-car off-street bay with dropped kerb at 8 Rankin Drive; part of front hedge removed and replaced by low rendered block wall, with new planting to maintain neighbour privacy. .

Supporting Documents (4)