Planning application

25/01644/FUL

Land 42 Metres Southeast Of 60 Hay Gardens Niddrie Edinburgh

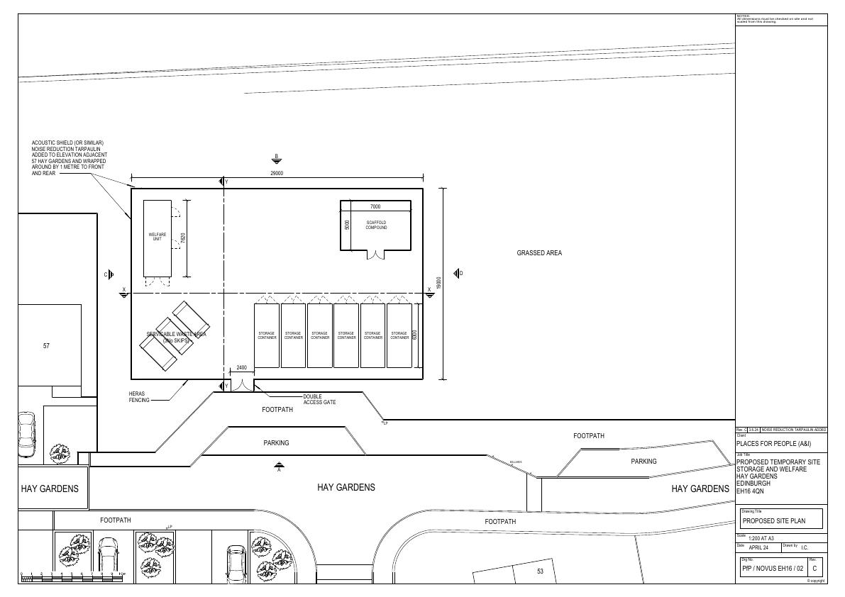
One-year extension for 20m 30m site compound at Hay Gardens: stacked storage containers, welfare cabin, skips, acoustic fencing; land to be restored by 31 May 2026. .

Status: Application GrantedCategory: Legal / AdministrativeReceived: 27 March 2025

Core Details

Reference
25/01644/FUL
Address
Land 42 Metres Southeast Of 60 Hay Gardens Niddrie Edinburgh
Status
Application Granted
Category
Legal / Administrative
Impact Scale
6/10

Timeline

Received
27 March 2025
Validated
31 March 2025
Last Scraped
30 September 2025
Record Created
6 April 2025

Application Summary

AI Summary

One-year extension for 20m 30m site compound at Hay Gardens: stacked storage containers, welfare cabin, skips, acoustic fencing; land to be restored by 31 May 2026. .

Original Description

Section 42 application to extend the granted temporary period under 24/02120/FUL from the 30 April 2025 to 30 April 2026 and restore the land to its pre-development condition by 31 May 2026.

Related Applications (1)

  • 26/00486/FULApplication Granted(10 February 2026)

    Hay Gardens compound could stay 12 months, using storage containers and a welfare cabin to hold doors, windows, rainwater gear, kitchens, baths, boilers for refurb.

Supporting Documents (4)