Planning application

25/01645/CLP

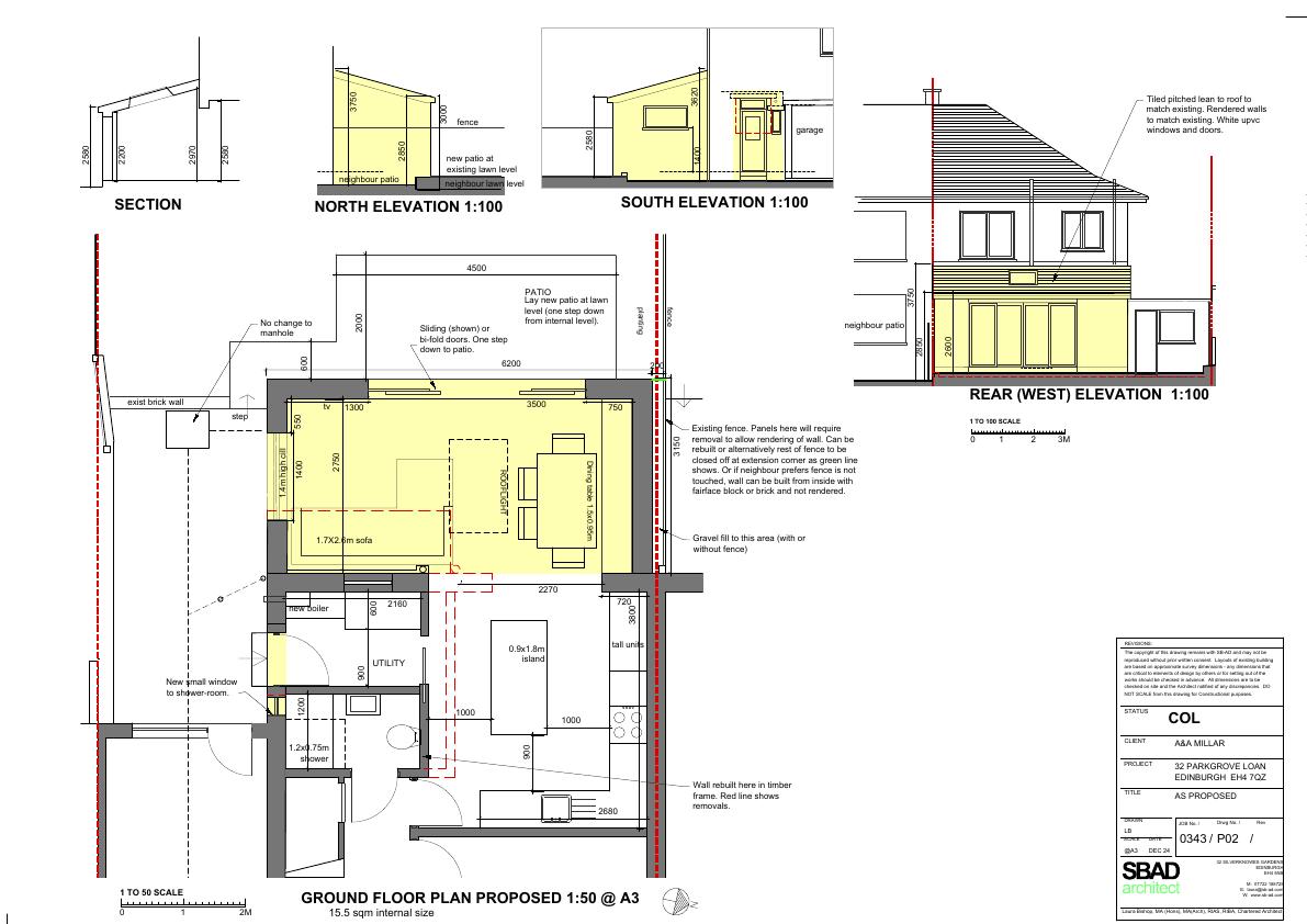
32 Parkgrove Loan Barnton Edinburgh EH4 7QZ

Single-storey 6.2 m rear extension with pitched roof, full-width glazed doors and patio, enlarging kitchen-diner and adding utility; no height change to main house.

Status: Application GrantedCategory: Extensions & EnlargementsReceived: 27 March 2025

Core Details

Reference
25/01645/CLP
Address
32 Parkgrove Loan Barnton Edinburgh EH4 7QZ
Status
Application Granted
Category
Extensions & Enlargements
Impact Scale
3/10

Timeline

Received
Validated
Last Scraped
Record Created

Additional Application Data

Latitude
55.957451
Longitude
-3.2982115

Application Summary

AI Summary

Single-storey 6.2 m rear extension with pitched roof, full-width glazed doors and patio, enlarging kitchen-diner and adding utility; no height change to main house.

Original Description

Rear extension to semi detached house.

Supporting Documents (3)