Planning application

25/01666/LBC

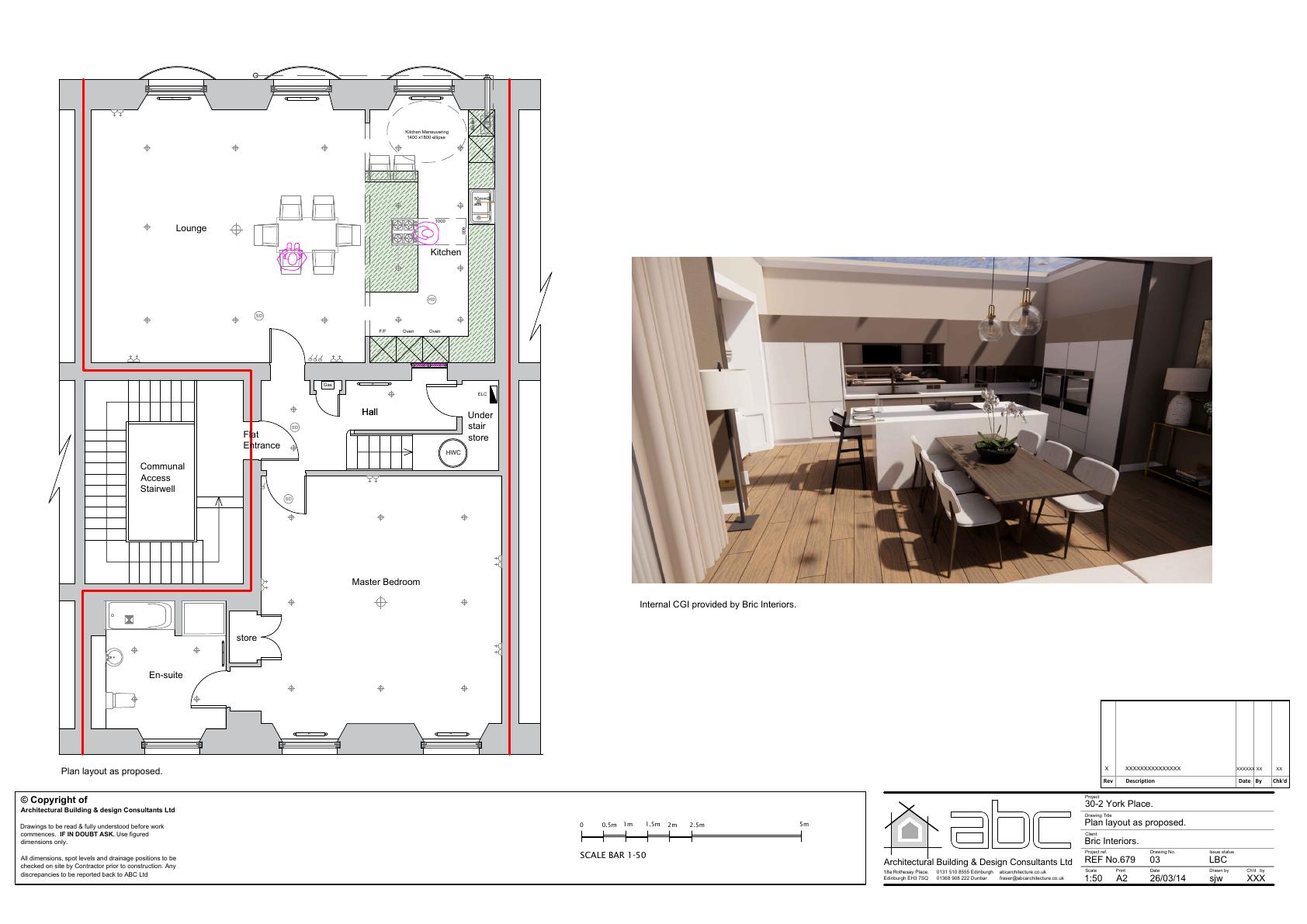
Flat 2 30 York Place New Town Edinburgh EH1 3EP

Removes kitchenlounge partition for an open-plan space and blocks a redundant doorway; entirely internal with no external alterations. .

Status: Awaiting AssessmentCategory: Internal Works & AccessibilityReceived: 28 March 2025

Core Details

Reference
25/01666/LBC
Address
Flat 2 30 York Place New Town Edinburgh EH1 3EP
Status
Awaiting Assessment
Category
Internal Works & Accessibility
Impact Scale
2/10

Timeline

Received
28 March 2025
Validated
28 March 2025
Last Scraped
13 April 2025
Record Created
4 April 2025

Application Summary

AI Summary

Removes kitchenlounge partition for an open-plan space and blocks a redundant doorway; entirely internal with no external alterations. .

Original Description

Internal alteration works to remove wall between kitchen and lounge, block up existing doorway along with all associated works.

Related Applications (1)

  • 25/00918/LBCApplication Granted(24 February 2025)

    All original sash cases retained; new like-for-like Slimlite double-glazed sashes replace single glazing, boosting efficiency while preserving the facades historic character.

Supporting Documents (4)