Planning application

25/01697/LBC

15 Cobden Terrace Dalry Edinburgh EH11 2BJ

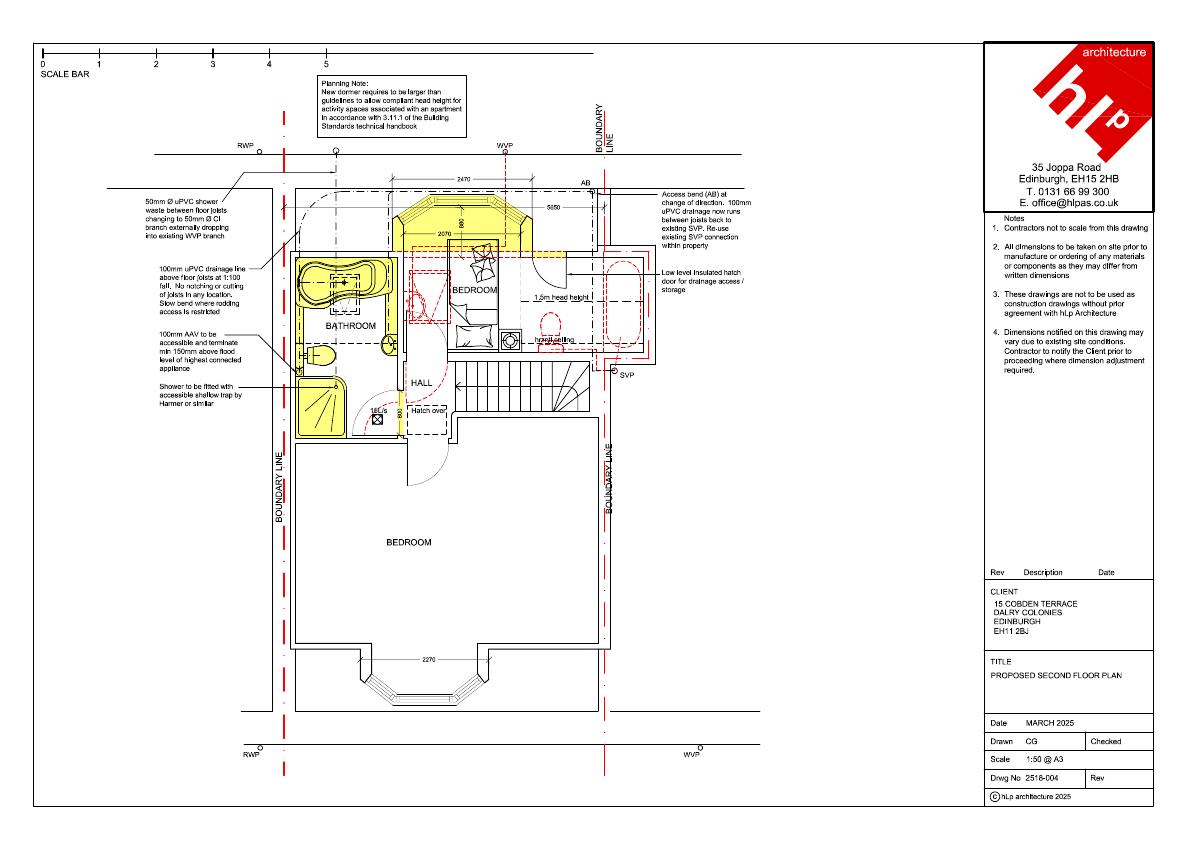
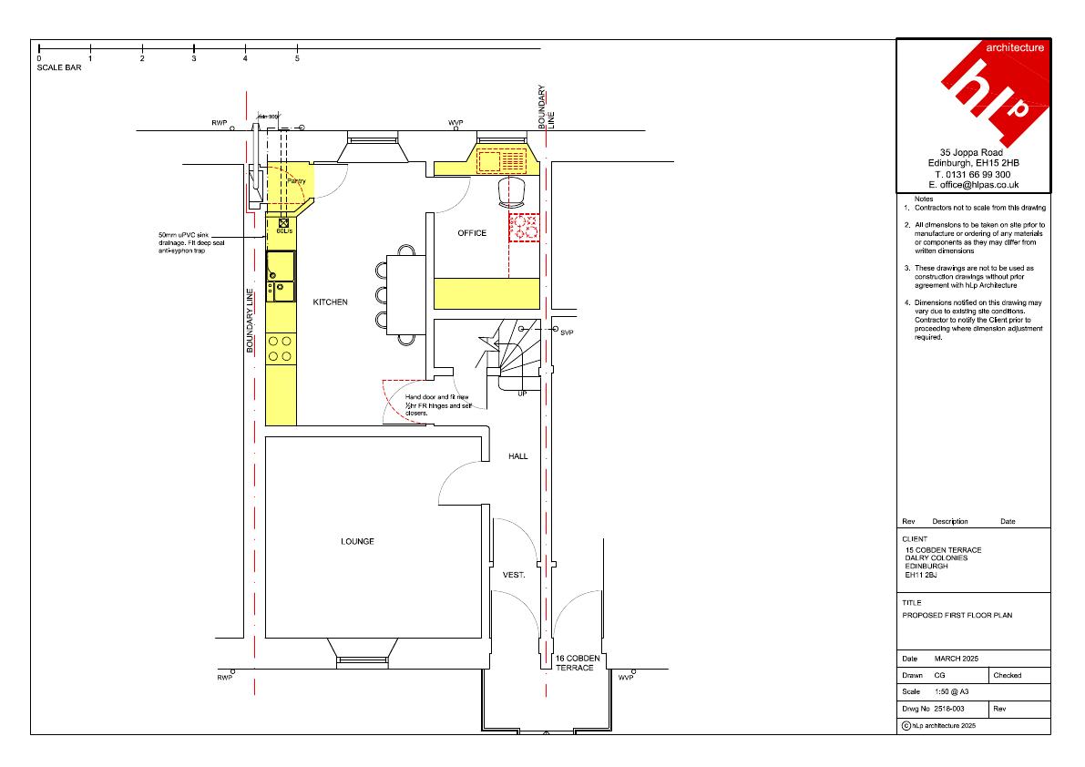
New rear canted dormer with timber sash windows and slate cheeks; kitchen shifted to first floor, adding bedroom + bathroom without enlarging the colony villas footprint. .

Status: Application GrantedCategory: Roof Works & DormersReceived: 31 March 2025

Core Details

Reference
25/01697/LBC
Address
15 Cobden Terrace Dalry Edinburgh EH11 2BJ
Status
Application Granted
Category
Roof Works & Dormers
Impact Scale
2/10

Timeline

Received
31 March 2025
Validated
31 March 2025
Last Scraped
30 September 2025
Record Created
6 April 2025

Application Summary

AI Summary

New rear canted dormer with timber sash windows and slate cheeks; kitchen shifted to first floor, adding bedroom + bathroom without enlarging the colony villas footprint. .

Original Description

Form new canted dormer with timber windows and slate haffits on upper villa of colony dwelling. Associated internal alterations and relocate kitchen at first floor level.

Related Applications (1)

  • 25/01698/FULApplication Granted(31 March 2025)

    Add rear canted dormer with slate cheeks and timber sash windows, enlarging attic for extra bedroom and bathroom in this mid-terrace colony flat. .

Supporting Documents (5)