Planning application

25/01699/LBC

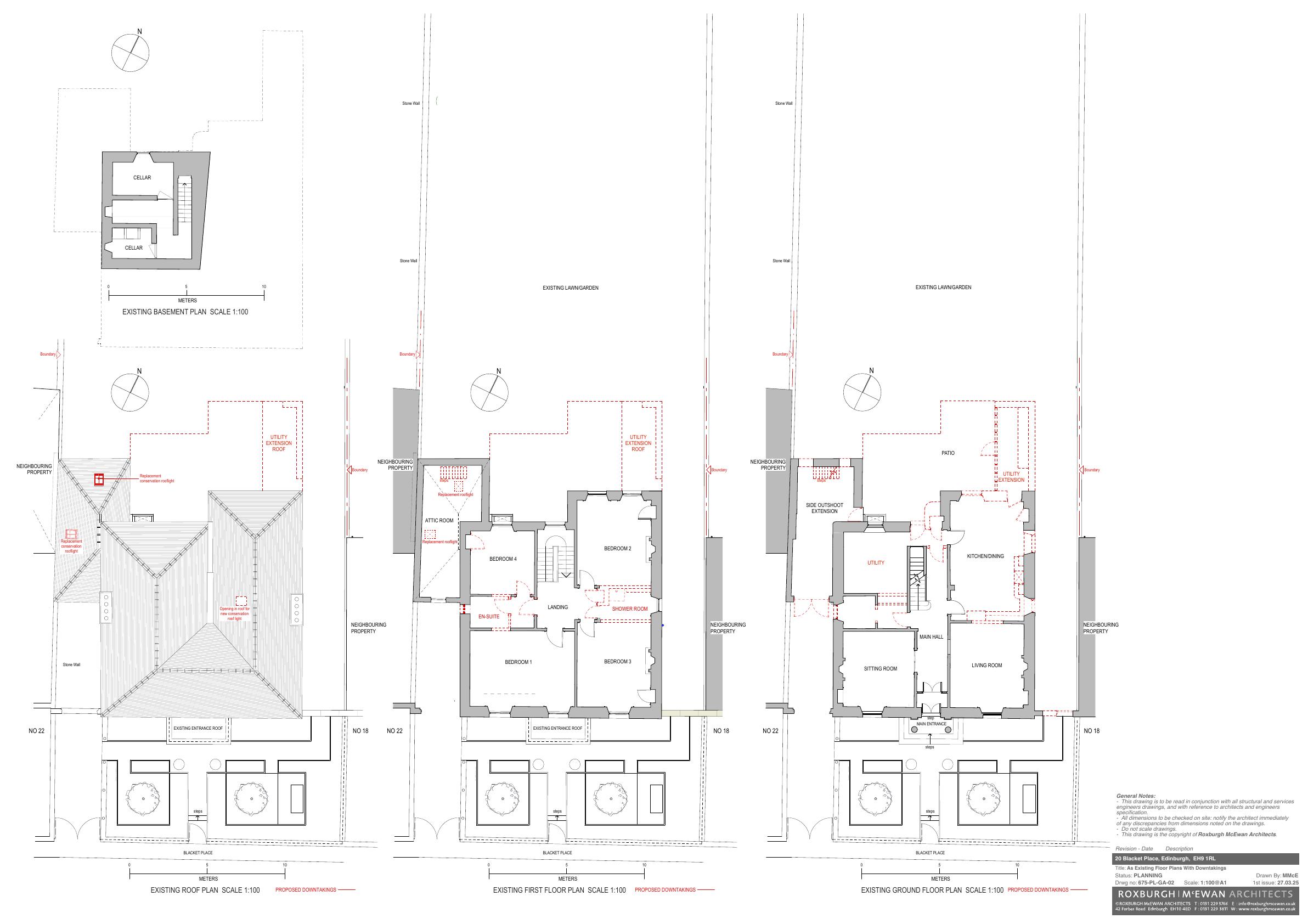
20 Blacket Place Newington Edinburgh EH9 1RL

Two-storey villa to add glazed single-storey rear kitchen/dining wing, small side lobby, detached greenhouse/store in garden, and internal reconfigurations; front faade and streetscape preserved. .

Status: Awaiting AssessmentCategory: Extensions & EnlargementsReceived: 31 March 2025

Core Details

Reference
25/01699/LBC
Address
20 Blacket Place Newington Edinburgh EH9 1RL
Status
Awaiting Assessment
Category
Extensions & Enlargements
Impact Scale
4/10

Timeline

Received
31 March 2025
Validated
31 March 2025
Last Scraped
13 April 2025
Record Created
6 April 2025

Application Summary

AI Summary

Two-storey villa to add glazed single-storey rear kitchen/dining wing, small side lobby, detached greenhouse/store in garden, and internal reconfigurations; front faade and streetscape preserved. .

Original Description

Alter, extend and install new green house to domestic dwelling house.

Related Applications (1)

  • 25/01715/FULApplication Granted(1 April 2025)

    Rear single-storey kitchen/living extension with full-height glazing, detached greenhouse-garden store, compact sauna outbuilding, internal re-layout and new front railings to an existing villa. .

Supporting Documents (4)