Planning application

25/01700/FUL

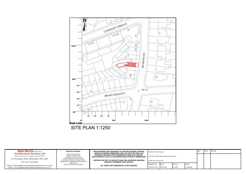
94 Braid Road Braid Hills Edinburgh EH10 6AP

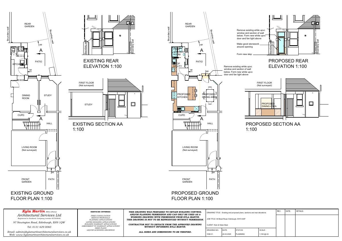
Swap rear window for full-height uPVC door with fanlight; brickwork made good and new single step to pationo change to footprint or massing. .

Status: Application GrantedCategory: Windows, Doors & GlazingReceived: 31 March 2025

Core Details

Reference
25/01700/FUL
Address
94 Braid Road Braid Hills Edinburgh EH10 6AP
Status
Application Granted
Category
Windows, Doors & Glazing
Impact Scale
1/10

Timeline

Received
Validated
Last Scraped
Record Created

Additional Application Data

Latitude
55.9219024
Longitude
-3.2096182

Application Summary

AI Summary

Swap rear window for full-height uPVC door with fanlight; brickwork made good and new single step to pationo change to footprint or massing. .

Original Description

Proposed alterations to change rear window to door.

Supporting Documents (3)