Planning application

25/01703/CLP

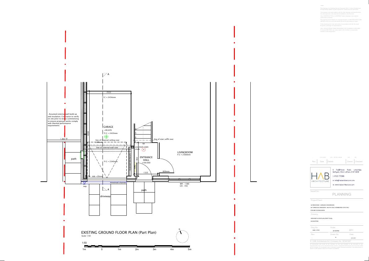
50 Torwood Crescent South Gyle Edinburgh EH12 9GJ

Converts integral garage into insulated family room/bedroom; swaps garage door for brick infill and triple-pane bay window; no footprint increase, only internal layout tweaks. .

Status: Application GrantedCategory: Change of Use & ConversionsReceived: 31 March 2025

Core Details

Reference
25/01703/CLP
Address
50 Torwood Crescent South Gyle Edinburgh EH12 9GJ
Status
Application Granted
Category
Change of Use & Conversions
Impact Scale
2/10

Timeline

Received
Validated
Last Scraped
Record Created

Additional Application Data

Latitude
55.9348227
Longitude
-3.2940017

Application Summary

AI Summary

Converts integral garage into insulated family room/bedroom; swaps garage door for brick infill and triple-pane bay window; no footprint increase, only internal layout tweaks. .

Original Description

Internal alterations and garage conversion of existing integral garage.

Supporting Documents (5)