Planning application

25/01705/FUL

Land Adjacent To 25 Telford Drive Edinburgh

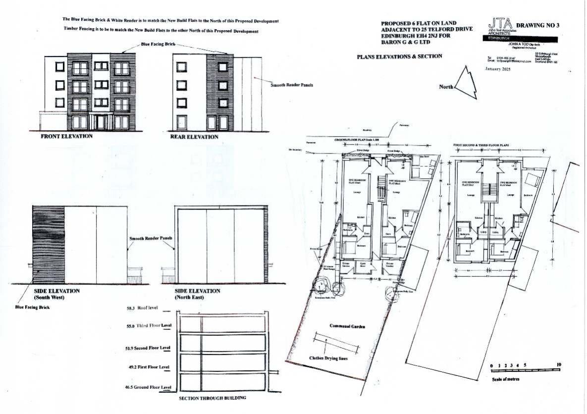
Four-storey infill block adding 8 flats on Telford Drive; brick/render finish, shared garden, cycle store and bin court on site of vacant land, no dedicated parking. .

Status: Application GrantedCategory: New-Build & Major DevelopmentReceived: 31 March 2025

Core Details

Reference
25/01705/FUL
Address
Land Adjacent To 25 Telford Drive Edinburgh
Status
Application Granted
Category
New-Build & Major Development
Impact Scale
6/10

Timeline

Received
Validated
Last Scraped
Record Created

Additional Application Data

Latitude
55.9642724
Longitude
-3.2407311

Application Summary

AI Summary

Four-storey infill block adding 8 flats on Telford Drive; brick/render finish, shared garden, cycle store and bin court on site of vacant land, no dedicated parking. .

Original Description

To erect a 4 Storey residential development comprising of 8 Flats with associated works (as amended).

Supporting Documents (5)